Projekt domu Słodki to uroczy, piętrowy dom dla rodziny 4- 6-osobowej. Projekt powstał przez połączenie piętrowej części mieszkalnej i parterowej ze strychem bryły dobudowanego garażu.
Projekt domu Słodki architektura i wnętrze
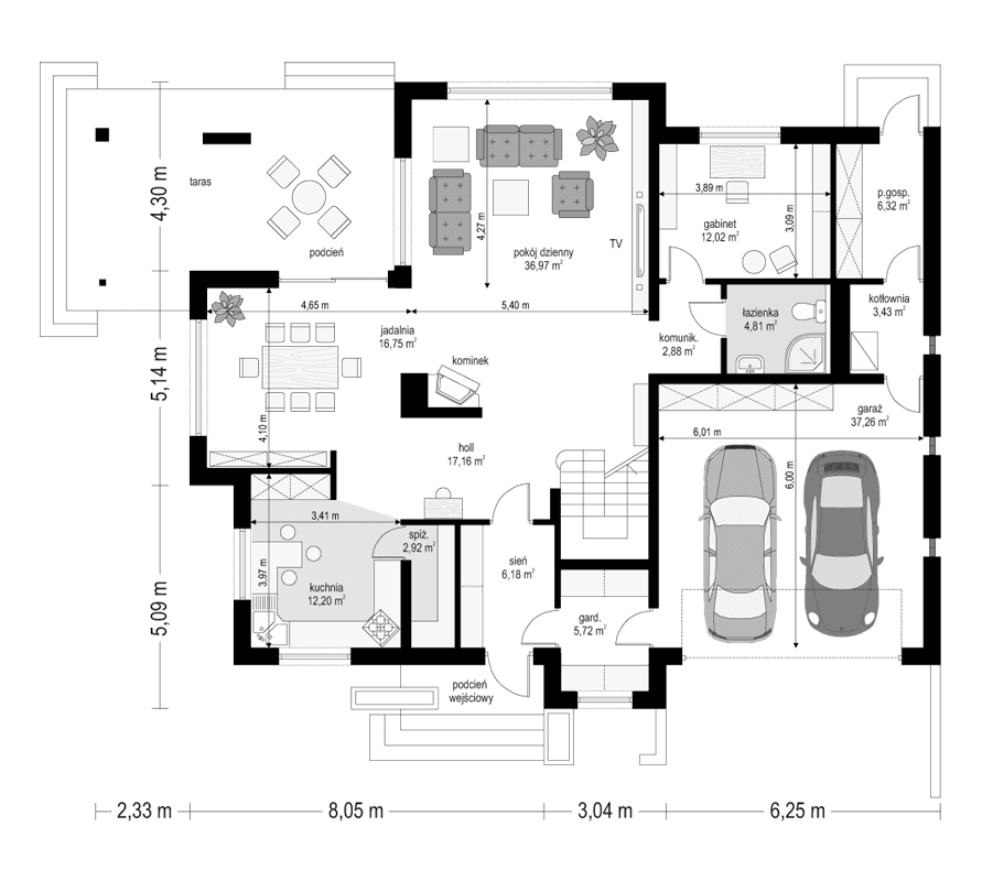
W projekcie domu Słodki to daszki, balkony, tarasy i pergole urozmaicają elewacje oszczędnej bryły. Podział ścian projektu Słodki na dwa poziome pasy obniża wizualnie piętrową sylwetkę domu. Wnętrze domu Słodki to jednoprzestrzenny parter, z salonem, jadalnią i holem. Na piętrze budynku zaprojektowano sypialnie. W projekcie domku Słodki na parterze udało się wygospodarować dodatkowy pokój mogący służyć jako gabinet, lub dodatkowa sypialnia w budynku. Na parterze budynku Słodki znajduje się również garaż i pomieszczenia techniczne. Na piętrze nad garażem domu powstała duża przestrzeń do dowolnej aranżacji. Szczególnie urokliwy jest w projekcie zadaszony taras z dużymi przeszkleniami z jadalni i salonu - stanowi on płynne przejście między wnętrzem domu a ogrodem.
Projekt o powierzchni użytkowej 226,50 m2 można postawić na działce o minimalnych wymiarach: szerokość 25,27 m, długość 22,53 m.
Istnieje możliwość zamówienia projektu domku Słodki w odbiciu lustrzanym.
Materiały:
- Fundamenty ławy betonowe, ściany z bloczków
- Ściany zewnętrzne dwuwarstwowe: pustaki silikatowe + wełna mineralna
- Strop teriva/drewniany
- Elewacje tynk cienkowarstwowy
- Pokrycie dachu dachówka


















