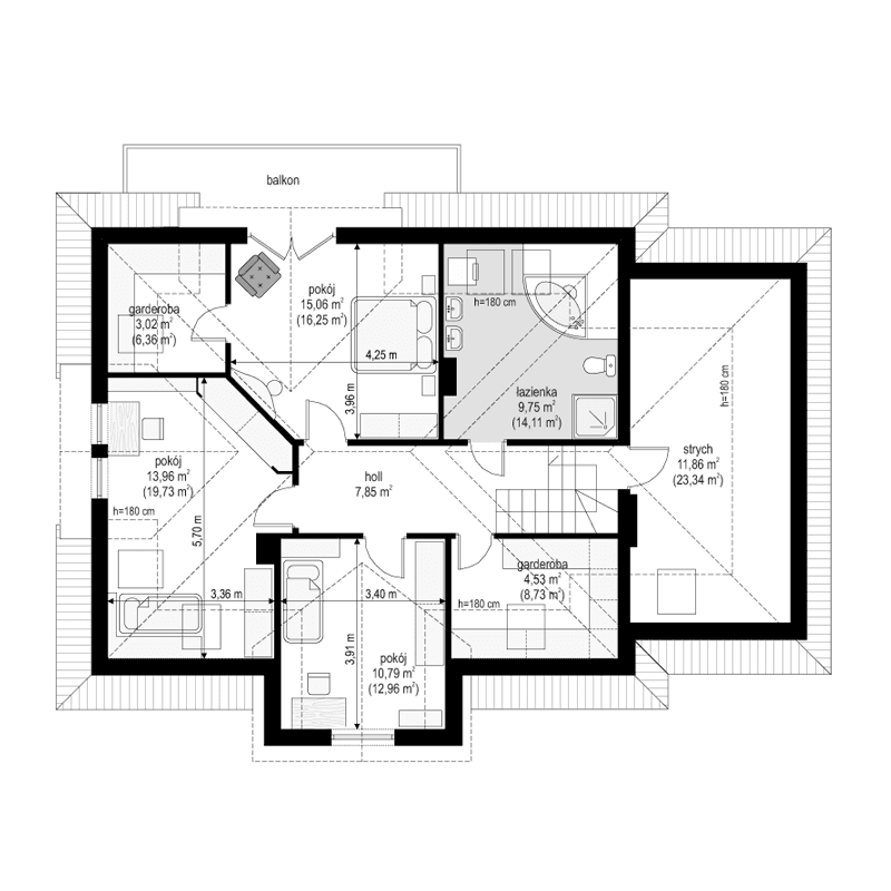
Projekt domu Saga to budynek o klasycznej architekturze, nawiązującej do dworku polskiego. Dom jednorodzinny dla rodziny 4- 5-osobowej. Projekt domu Saga posiada wielospadowy dach połączony z lukarnami, oryginalnym portykiem wejściowym z kolumnami i okrągłym oknem nadają bryle ciekawy wyraz. Detale - takie jak wykusz jadalni, duży balkon i podcień od strony ogrodu urozmaicają całość. We wnętrze domu zaprojektowano obszerny salon z kącikiem jadalnym zaakcentowanym delikatnym wykuszem. Dom Saga posiada duże przeszklenia otwierające wnętrze na taras i ogród. Częściowo otwarta kuchnia i holl powiększają powierzchnię dzienną. Na parterze mieszkania zaprojektowano dodatkowy pokój, garaż i kotłownię. Na poddaszu mieszczą się trzy sypialnie z garderobami i łazienką. Dodatkowo projekt daje możliwość zagospodarowania strychu nad garażem na pokój. Pracownia dysponuje odbiciem lustrzanym projektu domu Saga oraz inne wersje: projekt domu Saga, projekt domu Saga 2, projekt domu Saga 3.
Materiały:
- Fundamenty betonowe
- Ściany dwuwarstwowe: gazobeton + styropian lub wełna mineralna
- Strop Teriva
- Pokrycie dachu dachówka ceramiczna




















