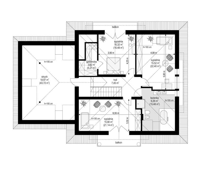
Projekt domu Romeo to komfortowy dom jednorodzinny, dla 4- 6-osobowej rodziny, parterowy z poddaszem użytkowym. Budynek ma zwartą bryłę, zaprojektowaną na planie kwadratu, z dobudowaną częścią garażowo-gospodarczą. Jest wariantem projektu Julka- jej większym bratem. Architektonicznie domek nawiązuje do tradycji polskiego dworku i przedwojennych willi, ale we współczesnym duchu – z wykorzystaniem nowoczesnych materiałów i technologii. Dom jest bardzo dobrze izolowany – w łatwy sposób może stać się budynkiem energooszczędnym. Elewację frontową ozdobiono podestem wejściowym, nad którym na dwóch kolumnach wsparto balkonik. Szerokie drzwi z bocznymi naświetlami zapraszają nas do wnętrza. Elewację ogrodową z kolei ozdabiają: wykusz salonu z pięknym szerokim oknem, oraz podcień, przez który szerokimi drzwiami balkonowymi wychodzimy z pokoju dziennego na taras i do ogrodu. Wnętrze domu podzielono na część dzienną na parterze, część nocną – z sypialniami na poddaszu, oraz część gospodarczą w dobudowanej bryle garażu. Piękny, bardzo duży salon, połączony z holem i półotwartą kuchnią tworzy komfortową i reprezentacyjną przestrzeń dzienną, dla której przyjęcie, czy uroczysty obiad nie będzie wyzwaniem. W środku przestrzeni znajdują się reprezentacyjne schody na poddasze, ozdabiające hol. Obok kuchni znajduje się potrzebna spiżarka. Po drugiej stronie przedsionka – dodatkowy pokój (gabinet lub sypialnia gościnna). Z holu przechodzimy do dwustanowiskowego garażu i dużej kotłowni. Na poddaszu mieszczą się trzy wygodne sypialnie i przestronna łazienka. Sypialnia rodziców – z własną garderobą. Nad garażem znajduje się wolna przestrzeń strychu, który można łatwo zaadaptować na cele użytkowe. Projekt domu Romeo to dobrze przemyślany, funkcjonalny i wygodny budynek, w pięknym „opakowaniu”. Pracownia posiada także odbicie lustrzane projektu.
Materiały:
- Fundamenty betonowe ławy i ściany fundamentowe z bloczków betonowych
- Ściany zewnętrzne ściany murowane - pustaki porotherm 25 + styropian + tynk cienkowarstwowy
- Strop Teriva
- Elewacje tynk cienkowarstwowy na styropianie
- Pokrycie dachu dachówka ceramiczna













