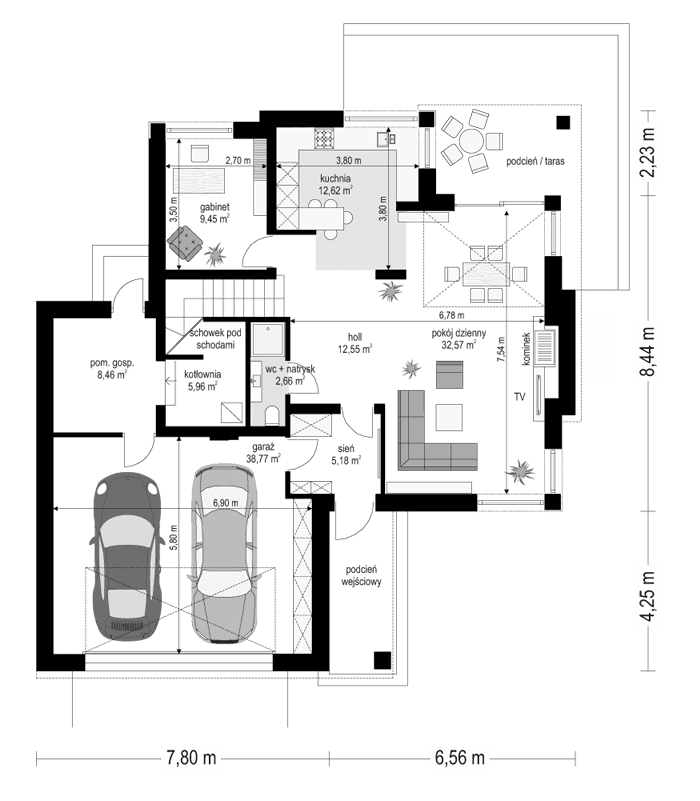
Projekt domu Riwiera 4 to wariant popularnego projektu Riwiera 2 - tym razem z dwustanowiskowym garażem. Projekt domu Riwiera 4 to piętrowy budynek, przewidziany dla 4- 5-osobowej rodziny, przekryty łagodnym wielospadowym dachem, z wbudowanym - częściowo wystającym poza obrys bryły domu - podwójnym garażem. Budynek zaprojektowano w stylu miejskiej nowoczesnej willi, z łagodnymi dachami i dużymi przeszkleniami. Elewacje podzielone zostały na poziome pasy, a ściany urozmaicone różnymi materiałowymi okładzinami. Charakterystycznym elementem domu są piękne duże okna , których część sięga od podłogi do sufitu, zapewniając dużo światła i piękne widoki na ogród z części dziennej. Wnętrze domu podzielono na część dzienną na parterze, oraz sypialnie na piętrze. Parter to otwarta duża przestrzeń dzienna, z salonem, holem i kuchnią, z wydzieloną częściowo jadalnią. Otwarty hol stanowi centrum domu. Z niego dostajemy się reprezentacyjnymi schodami na górę, lub obszernym przedsionkiem na zewnątrz , albo do części gospodarczej domu - do kotłowni i garażu. Na parterze znajduje się dodatkowy pokój (gabinet lub sypialnia gościnna), oraz wc z natryskiem. Nad jadalnią zostawiono otwarty sufit na antresolę piętra, z oknami o wysokości dwóch kondygnacji, z widokiem na ogródek. Reprezentacyjna ściana kominkowo-telewizyjna będzie ozdobą całego domu. Z salonu wychodzimy na częściowo zadaszony taras i do ogrodu. Na piętrze przewidziano cztery sypialnie, w tym apartament rodziców w osobnej części domu, z własną łazienką i garderobą. Sypialnie dziecięce mają dodatkową łazienkę - z holu. Istnieje możliwość zamknięcia pustki nad salonem i zaprojektowania piątego pokoju na piętrze. Projekt domu Riwiera 4 to przemyślany, bardzo funkcjonalny, energooszczędny dom jednorodzinny. Jego koszt budowy wypada korzystnie w stosunku do uzyskanej powierzchni (pozbawionej skosów), oraz komfortu i wygody mieszkania. Dostępna jest opcja w projekcie ze stropem monolitycznym nad parterem i piętrem, wersja w odbiciu lustrzanym projektu oraz inne wersje: bazowa (projekt Riwiera), wersja najmniejsza (projekt domu Riwiera 2) wersja poszerzona (projekt domu Riwiera 3) oraz zmodyfikowana i ulepszona wersja bazowego projektu (Projekt domu Riwiera 5). Zapraszamy!
Materiały:
- Fundamenty betonowe ławy i ściany fundamentowe z bloczków betonowych
- Ściany zewnętrzne ściany murowane - pustaki porotherm 25 + styropian + tynk cienkowarstwowy
- Strop teriva lub monolityczny
- Elewacje tynk cienkowarstwowy na styropianie
- Pokrycie dachu dachówka ceramiczna




















