Piękny dom piętrowy Riwiera 2 – ulubieniec inwestorów
Projekt domu Riwiera 2 to jeden z najpopularniejszych projektów piętrowych w Polsce. Nic dziwnego, bo jest to dom, który spełnia wszystkie oczekiwania inwestorów: jest piękny, funkcjonalny i energooszczędny.
Architektura domu
Dom Riwiera 2 zachwyca nowoczesną architekturą. Bryła budynku jest prosta i elegancka, z dużymi przeszkleniami, które zapewniają obfite ilości naturalnego światła. Elewacje budynku są urozmaicone różnymi okładzinami i kolorami, dzięki czemu dom wygląda nowocześnie i stylowo.
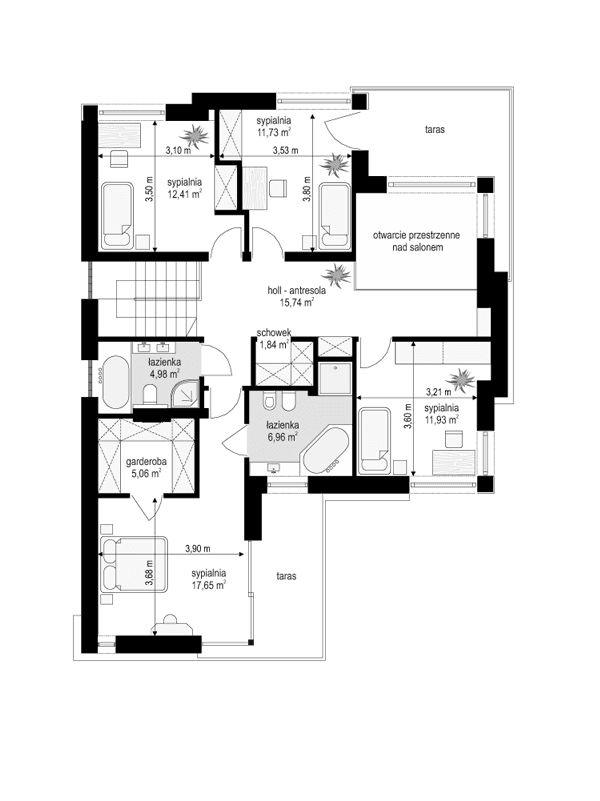
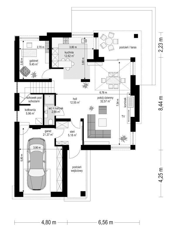
Układ pomieszczeń
Dom Riwiera 2 jest bardzo funkcjonalny. Na parterze znajduje się część dzienna, w której znajduje się salon z jadalnią, kuchnia, łazienka i dodatkowy pokój. Na piętrze znajdują się cztery sypialnie, w tym apartament rodziców z własną łazienką i garderobą oraz trzy sypialnie dziecięce z łazienką na korytarzu.
Funkcjonalność domu Riwiera 2
Dom Riwiera 2 to dom, w którym będzie się czuć komfortowo i wygodnie. Przemyślany układ pomieszczeń zapewnia odpowiednią przestrzeń do wypoczynku, pracy i relaksu. Duże przeszklenia zapewniają obfite ilości naturalnego światła, dzięki czemu dom jest jasny i przytulny.
Energooszczędność projektu
Dom Riwiera 2 jest energooszczędny, dzięki zastosowaniu nowoczesnych rozwiązań technologicznych. Budynek jest ocieplony styropianem, a pokrycie dachu wykonane jest z dachówki ceramicznej. Dzięki temu koszty ogrzewania domu są niskie.
Oceny użytkowników
Dom Riwiera 2 cieszy się bardzo dobrymi opiniami użytkowników. Inwestorzy chwalą go za piękną architekturę, funkcjonalny układ pomieszczeń i energooszczędność.
- "Dom Riwiera 2 to dom o wspaniałej funkcjonalności. Przemyślany układ pomieszczeń sprawia, że dom jest bardzo wygodny w użytkowaniu. Przestronny salon z jadalnią i kuchnią to idealne miejsce do spotkań z rodziną i przyjaciółmi. Sypialnie są doskonale doświetlone, a łazienki są wyposażone w wszystko, co potrzebne. Do tego garaż i pomieszczenie gospodarcze, które zapewniają komfort i wygodę użytkowania domu. Jesteśmy bardzo zadowoleni z wyboru tego projektu i polecamy go wszystkim, którzy szukają funkcjonalnego domu dla rodziny."- Ilona z rodziną
- "Dom Riwiera 2 to cudownie zaprojektowany dom z ergonomicznym wnętrzem. Wszystko jest w nim przemyślane i doskonale dopasowane do potrzeb rodziny. Super ekstra dom!" - Maja
Dom Riwiera 2 to doskonały wybór dla osób, które szukają pięknego, funkcjonalnego i energooszczędnego domu piętrowego. Jest to dom, w którym będzie się czuć komfortowo i wygodnie przez wiele lat.




















