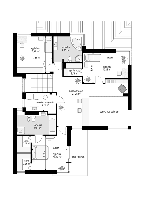
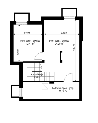
Projekt domu Riwiera to oryginalny, piętrowy dom przeznaczony dla 4- 6-osobowej rodziny. Budynek zaprojektowano jako jednopiętrową bryłę w kształcie litery T, przekrytą łagodnym wielospadowym dachem. Projekt domu Riwiera swoim stylem stara się nawiązać do charakteru miejskich willi, łącząc w sobie elementy modernistycznej architektury ze współczesnymi detalami i materiałami. W wyniku takiego połączenia udało uzyskano elegancką, dopracowaną formę. Budynek został zaprojektowany w taki sposób, aby mógł być zlokalizowany także na niekorzystnej względem stron świata działce. Nawet przy wjeździe od strony południowej w salonie będzie dużo światła - dzięki dużym przeszkleniom - również na front domu. Od strony ogrodowej zaprojektowano przytulny taras przykryty częściowo zadaszeniem podcienia. Wewnątrz, projekt domu Riwiera podzielono pod względem funkcjonalnym na strefy. Na parterze większość miejsca zajmuje przestrzeń dzienna, z pięknym dwukondygnacyjnym salonem - z antresolą na piętrze, z jadalnią, holem z reprezentacyjnymi schodami i częściowo otwartą kuchnią. Dodatkowo na parterze przewidziano pokój - gabinet lub zapasową sypialnię, oraz garaż. Schodami schodzimy do piwnicy, gdzie znajdują się pomieszczenia techniczne. Na piętrze zaprojektowano trzy sypialnie z garderobami, dwie łazienki (w tym jedna należąca do odizolowanego apartamentu rodziców z tarasem), oraz pralnię. Duży hol - antresola stanowi naturalne przedłużenie salonu. Pracownia posiada wersję odbicia lustrzanego projektu Riwiera oraz kilku wersjach: pomniejszonej (Projekt domu Riwiera 2), poszerzonej, o mniejszej głębokości (Projekt domu Rwiera 3) i pomniejszonej ze zmienionym układem wewnętrznym (Projekt domu Riwiera 4) oraz zmodyfikowana i ulepszona wersja bazowego projektu (Projekt domu Riwiera 5). Zapraszamy!
Materiały:
- Fundamenty betonowe ławy i ściany fundamentowe z bloczków betonowych
- Ściany zewnętrzne ściany murowane - pustaki porotherm 25 + styropian + tynk cienkowarstwowy
- Strop Teriva
- Elewacje tynk cienkowarstwowy na styropianie
- Pokrycie dachu dachówka





















