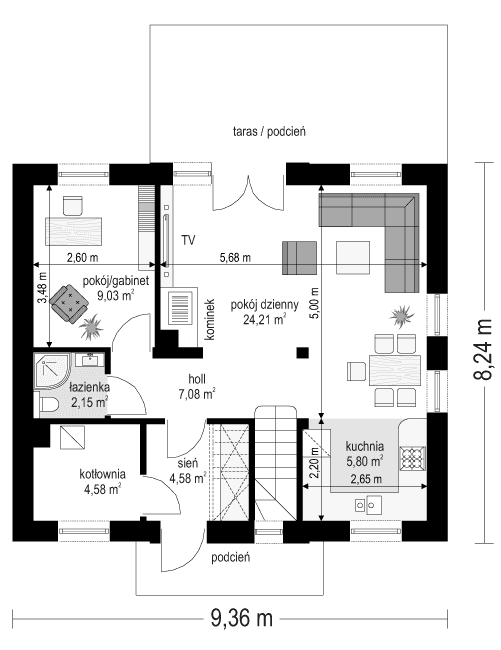
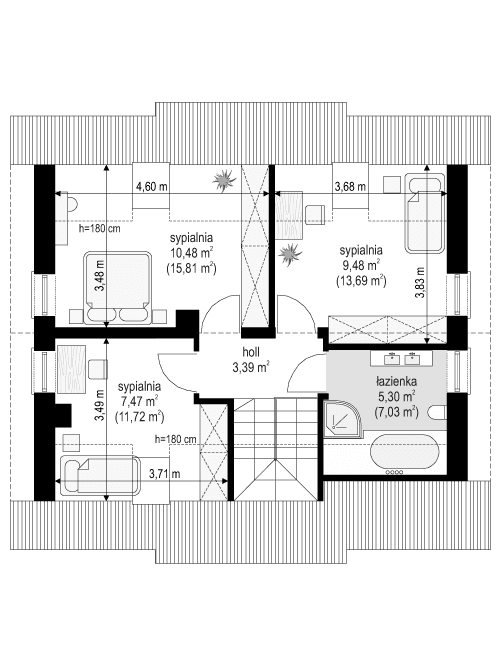
Projekt domu Przygoda to uroczy dom dla 4- 5-osobowej rodziny - parterowy, z poddaszem użytkowym, o zwartej prostokątnej bryle przykrytej dwuspadowym dachem. Prosta elegancja domu i jego funkcjonalność idą w parze z energooszczędnością i nowoczesnością. Kształt domu, jego proporcje od razu przywołują obraz „małego białego domku”, takiego domku z kominem - z dziecięcych wyobrażeń. Budowa domu to wielka przygoda. Dlaczego nie zdecydować się na nią z naszą „Przygodą” ;). Proporcjonalna symetryczna bryła wpasuje się w każde otoczenie. Nowoczesne materiały i kolorystyka budynku dodają domowi sznytu. Wnętrze domu mieści w sobie pięć pokoi, dwie łazienki i oddzielną kotłownię - wiele, jak na niespełna stumetrową powierzchnię. Na parterze mamy przestrzeń dzienną połączonego salonu, holu i kuchni, oraz dodatkowy pokój. Na poddaszu natomiast – trzy sypianie z łazienką. Projekt domu Przygoda ma wnętrze ustawne i funkcjonalne. Konstrukcja domu jest bardzo prosta i przejrzysta - będzie łatwa w budowie i – co najważniejsze - rozsądna kosztowo. Bardzo dobre ocieplenia ścian, podłóg i dachu powodują, że dom jest energooszczędny. W łatwy sposób można go dostosować do standardu NF40. Powierzchnia domu pozwala na zaliczenie projektu do programu MDM. Zapraszamy również do obejrzenia drugiego projektu tej serii: projekt domu Przygoda 2.
Materiały:
- Fundamenty betonowe ławy i ściany fundamentowe z bloczków betonowych
- Ściany zewnętrzne ściany murowane - bloczki gazobetonu + styropian + tynk cienkowarstwowy
- Strop monolityczny żelbetowy
- Elewacje tynk cienkowarstwowy na styropianie
- Pokrycie dachu dachówka ceramiczna




















