Projekt domu Prowansalski to uroczy domek jednorodzinny - oryginalny, o nieprzeciętnym stylu prowansalskim. Dom Prowansalski - jak sama nazwa wskazuje nawiązuje do architektury śródziemnomorskich willi, tak pięknie komponujących się z otoczeniem i przyrodą. Domek w stylu prowansalskim przewidziany jest do stałego zamieszkiwania czteroosobowej rodziny, może być zarówno domem mieszkalnym, jak i wakacyjną rezydencją. Projekt Prowansalski najlepiej wpasuje się w otoczenie z większą ilością zieleni, przestrzeni, lub w sąsiedztwo innych domów z duszą. Powierzchnia użytkowa domu to 116,32 m2.
Projekt domu Prowansalski architektura i wnętrze
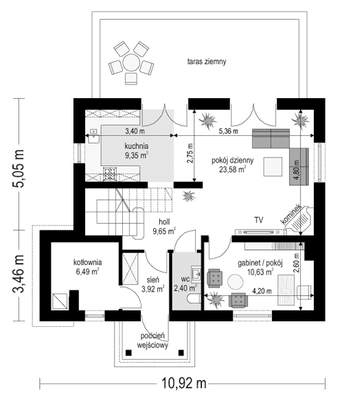
Stylizowany na wiejską siedzibę styl projektu Prowansalski kryje w sobie nowoczesny, energooszczędny budynek, zaprojektowany z najnowszych materiałów. Prosta była budynku w stylu prowansalskim, z dwuspadowym dachem nad poddaszem pozwoli na niedrogą budowę. Jedynymi ekstrawaganckimi elementami są sztucznie powiększone dwa potężne kominy w ścianach szczytowych domu, definiujące w dużej mierze styl i sylwetkę budynku. Elewacja frontowa projektu Prowansalski jest trochę bardziej oficjalna, natomiast z tyłu, za pomocą dużych przeszkleń, dom łagodnie otwiera się na ogród. Wnętrze Prowansalskiego to część dzienna na parterze i pokoje sypialne na poddaszu. Na dole uzyskano ładną otwartą przestrzeń dzienną, łącząc pokój dzienny i hol - z ładnie wyeksponowanymi schodami, oraz kuchni. Dodatkowo, z przedsionka mamy dostęp do dużego pomieszczenia kotłowni, a z holu do dodatkowego pokoju – gabinetu, bądź sypialni gościnnej. W projekcie domu Prowansalski na poddaszu dzięki wysokim ścianom kolankowym niemal w ogóle nie ma skosów w sypialniach. W związku z tym przestrzeń wszystkich trzech sypialni, wygodnej łazienki i garderoby można w pełni wykorzystać.
Gotowy projekt domku Prowansalskiego ma prostą konstrukcję, będzie więc łatwy i tani w budowie. Koszt budowy projektu Prowansalski to 183515 zł za stan surowy zamknięty. Dom Prowansalski ma korzystną proporcję powierzchni przegród zewnętrznych do kubatury - zupełnie jak w budynkach piętrowych. Po części jest budynkiem piętrowym w stylu prowansalskim, choć oficjalnie można go traktować jako dom z poddaszem użytkowym. Pracownia MGProjekt posiada również wersję odbicia lustrzanego projektu domu Prowansalski.
Materiały:
- Fundamenty betonowe ławy i ściany fundamentowe z bloczków betonowych
- Ściany zewnętrzne ściany murowane - pustaki porotherm 25 + styropian + tynk cienkowarstwowy
- Strop Teriva
- Elewacje tynk cienkowarstwowy na styropianie
- Pokrycie dachu dachówka ceramiczna


















