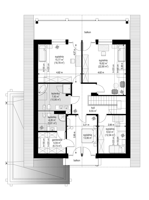
Projekt domu Otwarty 4 to najnowszy model domu z serii projektów Otwarty. Projekt jest przeznaczony dla 4- 6-osobowej rodziny. Prostokątna bryła domu przekryta dwuspadowym dachem o kącie nachylenia 40 stopni skrywa wnętrze składające się z parteru i poddasza użytkowego. Budynek zaprojektowano przeciwstawiając przeszkloną elewację ogrodową, elewacji frontowej i bocznym – z mniejszą ilością okien. Duże przeszklenia części dziennej na parterze i sypialni na poddaszu mają zapewnić maksymalny Kontakt z otaczającym dom ogrodem, z przestrzenią tarasową. Taras jest tutaj przedłużeniem pokoju dziennego. Prosta zasada ukształtowania bryły została w „Otwartym 4” urozmaicona nowoczesnymi detalami. Cały dom jest nowoczesny i dynamiczny, choć jednocześnie oszczędny w wyrazie. Wnętrze budynku podzielono na cześć dzienną na parterze, oraz sypialnie na poddaszu. Dodatkowo na parterze przewidziano dwustanowiskowy garaż i kotłownię. Duży otwarty salon połączony z aneksem jadalnym i kuchnią, oraz z holem z reprezentacyjnymi schodami tworzą jedną otwartą przestrzeń dzienną. Na parterze przewidziano też dodatkowy pokój - gabinet lub sypialnię gościnną. Na poddaszu znalazły się trzy sypialnie dziecięce z łazienką, oraz apartament rodziców, z własną garderobą i łazienką. Projekt ma zawartych w sobie wiele rozwiązań energooszczędnych, które pozwolą utrzymać niskie koszty późniejszej eksploatacji domu. Projekt domu Otwarty 4 to propozycja dla Inwestorów ceniących nowoczesność, prostotę, energooszczędność. Jednocześnie lubiących nawiązanie do tradycyjnego kształtu domu przekrytego dachem dwuspadowym. Projekt dostępny jest w odbiciu lustrzanym lub w innych wersjach: największa (projekt domu Otwarty) o pow. użytkowej: 165.55 m2 (projekt domu Otwarty 2), oraz najmniejszej (projekt domu Otwarty 3) oraz na węższą działkę (projekt domu Otwarty 5). Zapraszamy.
UWAGA! Projekt dostosowany do standardu NF40 w zakresie projektu architektoniczno-budowlanego. Podczas składania zamówienia na projekt domu Otwarty 4 proszę o wpisywanie dodatkowych informacji w pole uwagi na formularzu - w jakiej miejscowości zlokalizowana jest działka oraz jak ustawiony jest budynek względem stron świata (np. elewacja frontowa od północy).
Materiały:
- Fundamenty betonowe ławy i ściany fundamentowe z bloczków betonowych
- Ściany zewnętrzne ściany murowane - pustaki porotherm 25 + styropian + tynk cienkowarstwowy
- Strop Teriva
- Elewacje tynk cienkowarstwowy na styropianie
- Pokrycie dachu dachówka ceramiczna




















