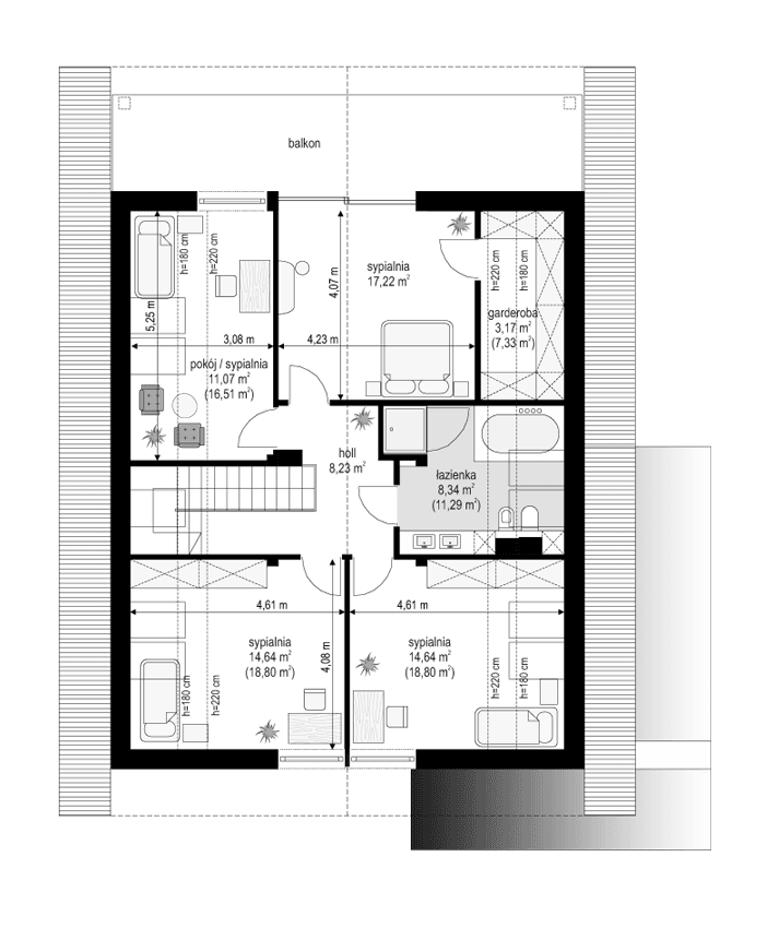
Projekt domu Otwarty 2 to nowoczesny, energooszczędny dom dla 4- 6-osobowej rodziny - Otwarty 2 . Jest to mniejszy brat popularnego projektu Otwarty z naszej pracowni. Projekt domu Otwarty 2 to nowoczesna willa miejska, z pięknymi przeszkleniami otwierającymi wnętrze domu na otaczający ogród. Architektura budynku łączy w sobie prostotę bryły przekrytej łagodnym dwuspadowym dachem, z nowoczesnymi detalami architektonicznymi i materiałami zastosowanymi na elewacjach. W efekcie budynek jest bardzo efektowny. Prostokątną bryłę z wbudowanym garażem wieńczy symetryczny dach przekrywający poddasze użytkowe. Prosty kształt i logiczny układ konstrukcyjny budynku, pozwolą na łatwą budowę i - wbrew pozorom – niewielki koszt realizacji (biorąc pod uwagę duże przeszklenia będące wartością samą w sobie). Wnętrze Otwartego 2 podzielono na przestrzeń dzienną, z dodatkowym pokojem, garażem i kotłownią na parterze, oraz sypialnie na poddaszu. Na parterze wchodzimy do pięknego przeszklonego przedsionka, a z niego do holu z ładnymi schodami i części dziennej - połączonego salonu, jadalni i półotwartej kuchni. Przestrzeń dzienna łączy się z częściowo zadaszonym tarasem i ogrodem za pomocą szerokich przesuwnych drzwi balkonowych. Z sieni możemy przejść do dwustanowiskowego garażu, oraz przez pomieszczenie gospodarcze – do kuchni. Przy wejściu znajduje się dodatkowy pokój – gabinet, lub sypialnia. Na poddaszu mieszczą się cztery pokoje, w tym sypialnia rodziców z własną garderobą i dużym zadaszonym balkonem od strony ogrodowej , oraz bardzo ładna łazienka. Wnętrze domu jest przestronne , a poszczególne pokoje duże i kształtne. Projekt domu Otwarty 2 mimo niewielkiej powierzchni można uznać za komfortowy, wręcz luksusowy dom dla współczesnej rodziny. Projekt dostępny jest w odbiciu lustrzanym i w trzech innych wersjach: projekt bazowy (projekt domu Otwarty) mniejszą wersja z garażem jednostanowiskowym (projekt domu Otwarty 3) oraz wersja ze zmienionym układem pomieszczeń na poddaszu (projekt domu Otwarty 4) oraz na węższą działkę (projekt domu Otwarty 5). Zapraszamy!
Materiały:
- Fundamenty betonowe ławy i ściany fundamentowe z bloczków betonowych
- Ściany zewnętrzne ściany murowane - pustaki porotherm 25 + styropian + tynk cienkowarstwowy
- Strop Teriva
- Elewacje tynk cienkowarstwowy na styropianie
- Pokrycie dachu dachówka ceramiczna




















