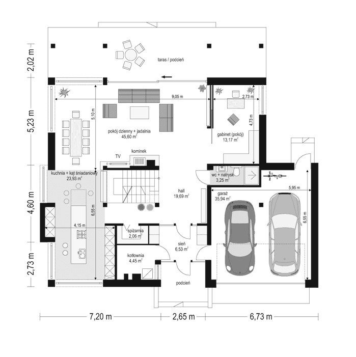
Projekt domu Otwarty to piękny, oryginalny dom jednorodzinny, przeznaczony dla 4- 6-osobowej rodziny. Charakteryzuje się nowoczesną architekturą z dużą ilością przeszkleń i otwarć - dedykowany jest Klientom, którzy chcą wyróżnić się ciekawym, dobrze przemyślanym i funkcjonalnym budynkiem. Dom Otwarty został zaprojektowany jako budynek parterowy z użytkowym poddaszem, o bardzo jasnym układzie konstrukcji, opartym na siatce słupów i podciągów. Dom przekryto dość łagodnym dwuspadowym dachem. W ciekawy i konsekwentny sposób wprowadzono tutaj naprzemienny układ pełnych ścian zewnętrznych i fragmentów całkowicie przeszklonych, co daje elewacjom lekki a wnętrzu niepowtarzalny charakter. Brak tu typowych okiennych parapetów i grzejników wiszących pod oknami. W tradycyjnej formie domu z dwuspadowym dachem, skryto nowoczesną architekturę z charakterem. Budynek jednocześnie, dzięki zastosowaniu odpowiednich materiałów, jest energooszczędny - zatem niedrogi w utrzymaniu. Wnętrze w projekcie domu Otwarty podzielono klasycznie na dzienny parter i poddasze z sypialniami. Na parterze dużym przeszklonym przedsionkiem dostajemy się do centralnego holu, z reprezentacyjnymi schodami, połączonego z salonem i kuchnią. Bardzo ładna kuchnia z wyspą i kącikiem do szybkich posiłków, łączy się z jadalnią i salonem. W pokoju dziennym uwagę zwraca przede wszystkim przeszklona ściana otwierająca dom na zadaszony taras i ogród, oraz - po drugiej stronie - centralny kominek i ściana TV. Na parterze dodatkowo przewidziano pokój - np. gabinet, garaż i kotłownię. Na poddaszu mieszczą się: apartament rodziców - z łazienką i garderobą, trzy dodatkowe sypialnie z łazienką, oraz pralnia. Nad całością znajduje się jeszcze niewielki strych - studio. Projekt domu Otwarty jest propozycją dla odważnych Inwestorów, którzy lubią duże przeszklenia, ładne kontrasty w sylwetce domu i jego wnętrzu. Pracownia posiada odbicie lustrzane projektu oraz kilka wersji: pomniejszonej z garażem dwustanowiskowym (projekt domu Otwarty 2), pomniejszonej z garażem jednostanowiskowym (projekt domu Otwarty 3), ze zmienionym układem pomieszczeń (projekt domu Otwarty 4) oraz na węższą działkę (projekt domu Otwarty 5). Zapraszamy!
Materiały:
- Fundamenty betonowe ławy i ściany fundamentowe z bloczków betonowych
- Ściany zewnętrzne ściany murowane - pustaki porotherm 25 + styropian + tynk cienkowarstwowy
- Strop Teriva
- Elewacje tynk cienkowarstwowy na styropianie
- Pokrycie dachu dachówka



















