Projekt domu Oszczędny to projekt niedużego domu jednorodzinnego, dla osób, które lubią nowoczesne rozwiązania, nie przepadają na dachami z okapami, ale muszą budować dom z poddaszem użytkowym.
Projekt domu Oszczędny architektura
Poddasze w projekcie Oszczędny ma na tyle wysoką ścianę kolankową, że prawie nie ma żadnych skosów. Dzięki temu można je w pełni wykorzystać. Projekt Oszczędny zaplanowano na planie zbliżonym do kwadratu. Poddasze projektu domu Oszczędny przykrywa dwuspadowy symetryczny dach. Do głównej bryły budynku dobudowany jest garaż. Projekt domku Oszczędny można ustawić w różny sposób na działce - drzwiami wejściowymi do drogi, lub bramą garażową do wjazdu na posesję. Prosta, nowoczesna bryła budynku, symetrycznie i proporcjonalnie rozłożone okna - wszystko to sprawia, że dom dobrze wkomponuje się w każde sąsiedztwo. Zastosowane nowoczesne materiały, ciekawa kolorystyka budynku, idą w parze z energooszczędnością i prostą konstrukcją domu, która ułatwi i zminimalizuje koszty budowy.
Projekt Oszczędny wnętrze
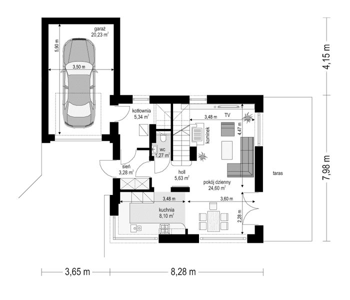
Wnętrze domu Oszczędny to przestrzeń dzienna na parterze, z pokojem dziennym, holem i kuchnią, z ładnie wyeksponowanymi schodami i kominkiem. Na poddaszu budynku znajdują się trzy sypialnie z łazienką. Na parterze miejsce znalazła spora kotłownia i dobudowany garaż. Można oczywiście wybudować dom Oszczędny także bez garażu. Gotowy projekt domku Oszczędny ma zwartą bryłę i bardzo dobre ocieplenia, co czyni go projektem energooszczędnym. W łatwy sposób można go dostosować do standardu NF40. Konstrukcja domu jest bardzo prosta, co ułatwi budowę i obniży koszty realizacji. Zapraszamy do zapoznania się również z inną wersją projektu dom Oszczędny, jaką jest projekt domu Oszczędny 2. Projekty domów Oszczędny i Oszczędny 2 dostępne są również w odbiciu lustrzanym.
Materiały:
- Fundamenty betonowe ławy i ściany fundamentowe z bloczków betonowych
- Ściany zewnętrzne ściany murowane - pustaki porotherm 25 + styropian + tynk cienkowarstwowy
- Strop monolityczny żelbetowy
- Elewacje tynk cienkowarstwowy na styropianie
- Pokrycie dachu dachówka ceramiczna


















