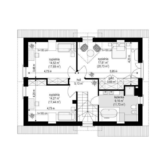
Projekt domu Oskar to budynek jednorodzinny dla 4- 5-osobowej familii. Parterowy domek z poddaszem użytkowym, rozwiązany na prostokątnym rzucie i przekryty symetrycznym dachem. Bryła budynku jest proporcjonalna i bliska skali człowieka. Właściwe proporcje, oszczędna forma i dopracowane nowoczesne detale dają bardzo estetyczny wygląd Oskara. Dzięki nieskomplikowanej konstrukcji, budynek będzie łatwy i niedrogi w budowie. Zarówno jego sylwetka, jak i układ pomieszczeń w środku rozwiązano optymalnie. Do domu wchodzimy przez delikatny frontowy podcień wejściowy. Elewację frontową dekoruje lukarna z podwójnym oknem doświetlającym klatkę schodową. Od strony elewacji ogrodowej - z tyłu i z boku domu z kolei, zaprojektowano ładne przeszklone wyjścia na narożny taras. Wnętrze podzielono na część dzienną na parterze (nie licząc dodatkowego pokoju – gabinetu, lub sypialni gościnnej), oraz sypialnie na poddaszu. Połączono przestrzennie salon z jadalnią, oraz kuchnię i częściowo otwarty holl z widocznymi reprezentacyjnymi schodami. Jednoprzestrzenna część dzienna jest dzięki temu wyjątkowo duża. W salonie znajduje się kominek i ściana telewizyjna. Na parterze domu Oskar dodatkowo znalazł swoje miejsce przedsionek z szafami, kotłownia, oraz dodatkowy pokój i łazienka z natryskiem. Na poddaszu mieszczą się trzy bardzo ładne sypialnie, oraz duża łazienka. Sypialnie dziecięce mają wbudowane szafy, a sypialnia rodziców obszerną garderobę. Projekt domu Oskar to energooszczędny, prosty w budowie, ekonomiczny dom, który będzie służył każdego rodzinie przez wiele lat. Jego wielkość jest optymalna – nie jest za duża ani zbyt mały – po prostu w sam raz. Pracownia posiada wersję odbicia lustrzanego projektu domu Oskar.
Materiały:
- Fundamenty betonowe ławy i ściany fundamentowe z bloczków betonowych
- Ściany zewnętrzne ściany murowane - pustaki porotherm 25 + styropian + tynk cienkowarstwowy
- Strop Teriva
- Elewacje tynk cienkowarstwowy na styropianie
- Pokrycie dachu dachówka ceramiczna




















