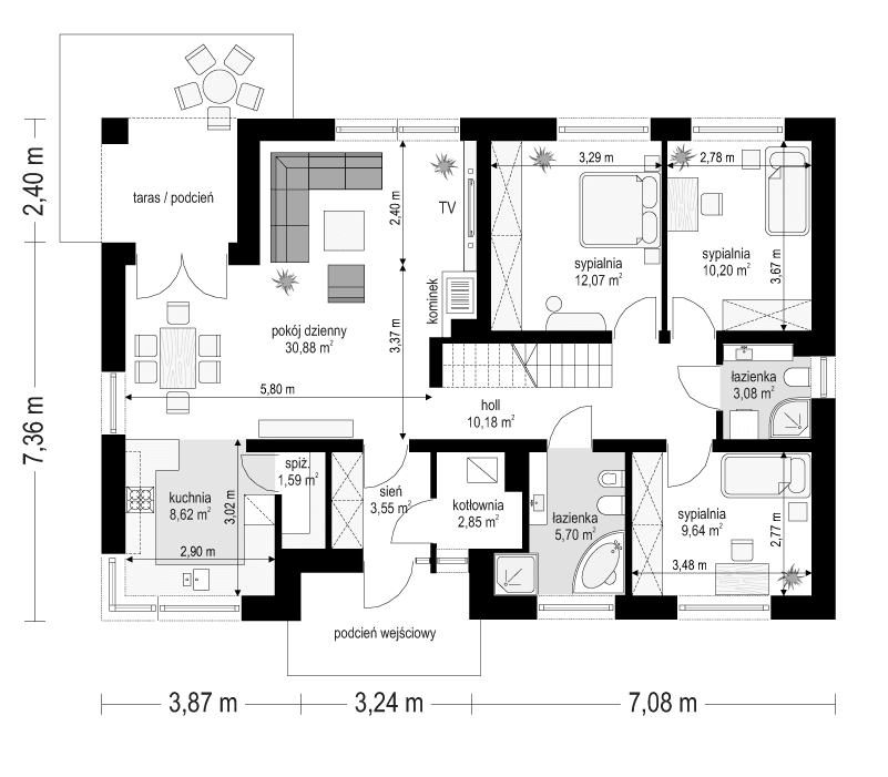
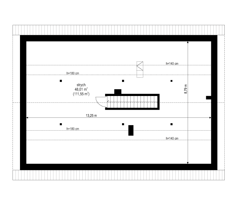
Projekt domu Oliwka to projekt parterowego domu jednorodzinnego, dla czteroosobowej rodziny, ze strychem do adaptacji, przekrytym dwuspadowym symetrycznym dachem. Prosta nowoczesna bryła budynku ozdobiona jest oryginalną stolarką okienną, oraz drewnianymi i klinkierowymi okładzinami ścian. Tradycyjna forma parterowego domu zaprojektowanego na planie prostokąta, została połączona z nowoczesnym detalem i materiałami. Elewację frontową Oliwki urozmaica podcień wejściowy i drewniana okładzina ściany. Narożne okno kuchni dodaje frontowi charakteru. Dom od strony ogrodu z kolei wzbogacają: narożny podcień zadaszenia tarasu i szerokie przeszklenia salonu. Współczesna stylistyka domu bardzo łatwo daje się modelować i modyfikować - Oliwka równie dobrze może mieć dach z dachówki, czy ściany z boniowaniem. Wnętrze ma tradycyjny układ czteropokojowego parterowego domu jednorodzinnego. Czytelny jest podział na cześć dzienną, z salonem, jadalnią, kuchnią i holem, oraz cześć nocną – z sypialniami i łazienkami. Gazowa kotłownia zlokalizowana przy wejściu może być łatwo dostosowana do pieca na paliwo stałe. Pokój dzienny z aneksem jadalnym jest bardzo ustawny. Jest tu świetne miejsce na meble wypoczynkowe, kominek, a także ścianę TV. Kuchnia posiada własną spiżarkę - marzenie niejednej pani domu. Trzy wygodne sypialnie z przewidzianymi ścianami na szafy wbudowane graniczą z dwiema łazienkami. Mała łazienka z wc i natryskiem pełni rolę codziennej toalety i dodatkowej łazienki zarazem. Schody w korytarzu wiodą nas na strych, który właściciele mogą dowolnie wykorzystać: jako dodatkową przestrzeń magazynową, lub powierzchnię użytkową. Projekt domu Oliwka zaprojektowano jako energooszczędny, z wykorzystaniem nowoczesnych materiałów, instalacji i technologii. Dzięki temu będzie tani w budowie i w późniejszym utrzymaniu. Podstawowa wersja Oliwki nie posiada garażu, ale z łatwością można doprojektować do niej pojedynczy lub podwójny garaż. Można też dołączyć do budynku garaż wolnostojący. Pracownia posiada projekt domu Oliwka w odbiciu lustrzanym.
Materiały:
- Fundamenty betonowe ławy i ściany fundamentowe z bloczków betonowych
- Ściany zewnętrzne ściany murowane - pustaki porotherm 25 + styropian + tynk cienkowarstwowy
- Strop drewniany belkowy lub ( wariant ) betonowy teriva
- Elewacje tynk cienkowarstwowy na styropianie
- Pokrycie dachu dachówka ceramiczna


















