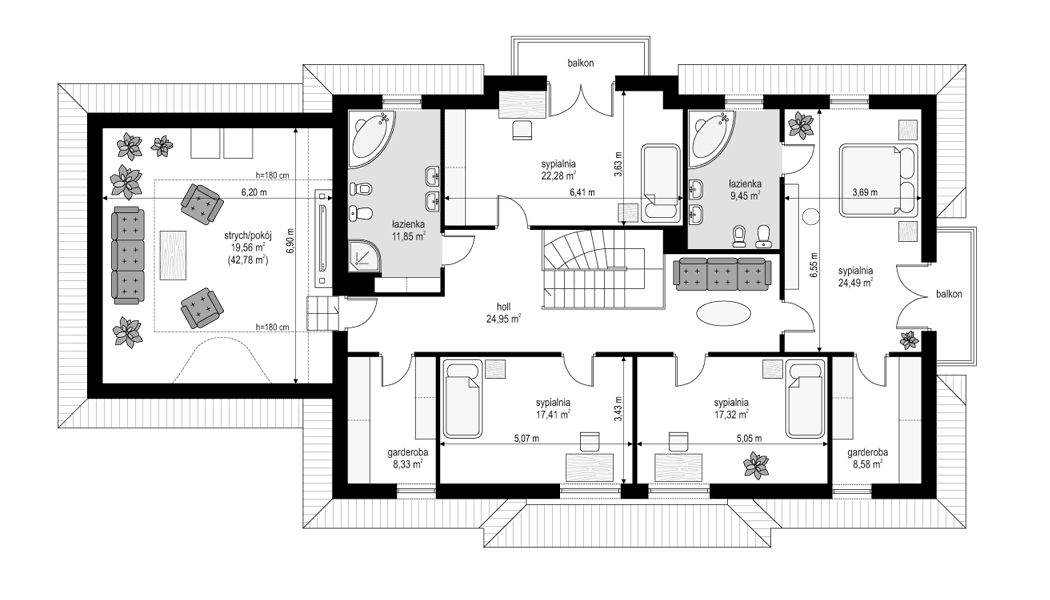
Projekt domu Okazały to duży, reprezentacyjny dom, dla rodziny 4- 6-osobowej. Piętrowa bryła domu tworzy pełnowymiarowe pokoje na piętrze, bez skosów przy ścianach zewnętrznych. Na parterze zaprojektowano duży salon połączony z holem i aneksem jadalnym. Salon posiada piękne obniżone okno w ściętym narożniku, wychodzące na ogród. Jadalnia jest częściowo połączona z obszerną kuchnią ze spiżarnią. Na parterze zaprojektowano dodatkowy pokój-gabinet i dodatkowe pomieszczenie gospodarcze. Na piętrze w domu Okazały zaprojektowano 4 sypialnie, w tym jedna - sypialnia rodziców - z własną łazienką i garderobą. Nad garażem zaplanowano strych - mogący służyć np. jako pokój z kinem domowym lub sala ćwiczeń. Wygląd zewnętrzny domu: frontowy narożny podcień z eleganckimi drzwiami wejściowymi, duże okno kuchenne, ciekawy tylny podcień ogrodowy wsparty na kolumnach, balkony od strony ogrodowej - wszystkie te elementy nadają bryle finezji i elegancji. Pracownia posiada odbicie lustrzane projektu domu Okazały.
Materiały:
- Fundamenty betonowe
- Ściany dwuwarstwowe: porotherm + wełna mineralna lub styropian
- Strop monolityczny żelbetowy
- Pokrycie dachu dachówka ceramiczna


















