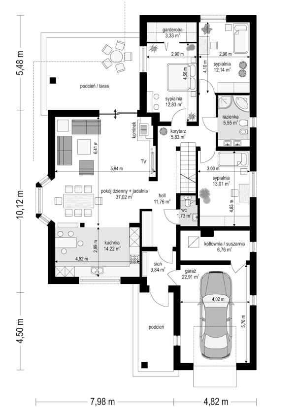
Projekt domu Natalia 4 to wersja wariantowa popularnego projektu Natalia. Tym razem dom jest węższy, przystosowany do wąskiej działki. Budynek jest parterowy, przekryty kopertowym dachem z dwiema dobudowanymi częściami - garażem od frontu i sypialniami od strony ogrodowej. Nad parterem znajduje się strych, który można w drugim etapie zaadaptować jako poddasze użytkowe. Architektura zewnętrzna domku Natalia 4 jest bezpretensjonalna. Łączy w sobie tradycyjną formę polskiego "dachowca" z nowoczesnym detalem i materiałami. Całość jest lekka i zachowuje ludzką skalę. Dom doskonale wtapia się w otoczenie i zachowuje kontakt z ogrodem. Wewnątrz zaprojektowano jednoprzestrzenną część dzienną - z salonem, holem, otwartą dużą kuchnią, część nocną - z trzema sypialniami i łazienką, oraz część gospodarczą - z garażem i kotłownią. Pokój dzienny z aneksem jadalnym z wykuszem, narożnym kominkiem, wyeksponowaną ścianą telewizyjną, czy szerokimi szklanymi drzwiami na częściowo zadaszony taras i ogród, stanowi łącznik wszystkich pomieszczeń i główne miejsce życia domowników. Stąd przechodzimy do sypialni, czy na strych, który można zaadaptować na poddasze użytkowe. W pracowni MG Projekt można zamówić też wersję odbicia lustrzanego projektu domu Natalia 4, lub jedną z trzech pozostałych wersji: podstawowa (projekt domu Natalia), o największej powierzchni 180.49 m2 (projekt domu Natalia 2), komfortową z trzema sypialniami (projekt domu Natalia 3). Zapraszamy!
Materiały:
- Fundamenty betonowe ławy i ściany fundamentowe z bloczków betonowych
- Ściany zewnętrzne ściany murowane - pustaki porotherm 25 + styropian + tynk cienkowarstwowy
- Strop Teriva
- Elewacje tynk cienkowarstwowy na styropianie
- Pokrycie dachu dachówka


















