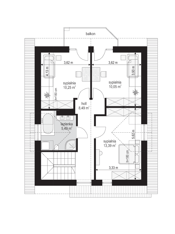
Projekt domu Na Swoim 2 to sympatyczny projekt domu jednorodzinnego dla 4- 5-osobowej rodziny. Jest to wersja wariantowa podstawowego projektu, z dodatkowym pokojem na parterze zamiast wbudowanego garażu, oraz powiększoną przestrzenią dzienną o sporą kuchnię. Z naszym projektem zbudujecie Państwo piękny dom i poczujecie się wreszcie „na swoim” ;). Zapraszamy ! Domek ma zwartą prostą bryłę. Zbudowany jest na planie prostokąta. Poddasze przykrywa dwuspadowy symetryczny dach. Architektura domu jest stonowana - nowoczesna, ale jednocześnie bezpretensjonalna. Zastosowane nowoczesne materiały, kolorystyka, układ okien, okładziny naścienne - podkreślają współczesny styl domu. Jednocześnie dwuspadowy dach osadza bryłę w tradycyjnej estetyce. Projekt domu Na Swoim 2 doskonale wkomponuje się w każde otoczenie. Dom nadaje się na bardzo wąską działkę, o szerokości nieco ponad 16 metrów. Rzadko można spotkać projekt o właściwych proporcjach, który zmieści się na tak wąskiej parceli. Wnętrze domu to: na parterze - część dzienna z pokojem dziennym i otwartą kuchnią, kotłownia z osobnym wejściem, łazienka i bardzo praktyczne schody umieszczone blisko wejścia (dzięki temu dzieci nie skaczą rodzicom po głowie w salonie, gdy wchodzą i wychodzą z i do domu). Na poddaszu natomiast, to trzy sypialnie z łazienką. Dzięki zwartej bryle i bardzo dobrym izolacjom przegród, dom jest energooszczędny. Bardzo łatwo go dostosować do standardu NF40. Prosta bryła, łatwa konstrukcja pozwolą też na szybką, łatwą i niedrogą budowę budynku. „Na Swoim 2” to bardzo logiczny, sensowny wybór dla Twojego przyszłego domu. Zapraszamy !
Materiały:
- Fundamenty betonowe ławy i ściany fundamentowe z bloczków betonowych
- Ściany zewnętrzne ściany murowane - pustaki porotherm 25 + styropian + tynk cienkowarstwowy
- Strop monolityczny żelbetowy
- Elewacje tynk cienkowarstwowy na styropianie
- Pokrycie dachu dachówka ceramiczna


















