Projekt domu Na Swoim to sympatyczny dom jednorodzinny dla 4- 5-osobowej rodziny. Z projektem domku Na Swoim zbudujecie Państwo piękny dom i poczujecie się wreszcie jak... "na swoim". Powierzchnia użytkowa domu to 91,41 m², co pozwoli na aranżację wygodnego mieszkania dla wszystkich Domowników.
Projekt domu Na Swoim architektura i wnętrze
Projekt Na Swoim ma zwartą, prostą bryłę. Dom zbudowany jest na planie prostokąta, a poddasze budynku przykrywa dwuspadowy symetryczny dach projektu Na Swoim. Architektura domu jest stonowana - nowoczesna, ale jednocześnie bezpretensjonalna. W projekcie domu Na Swoim zastosowane zostały nowoczesne materiały, kolorystyka, układ okien, okładziny naścienne - co podkreśla współczesny styl domu. Jednocześnie dwuspadowy dach osadza bryłę w tradycyjnej estetyce. Dom doskonale wkomponuje się w każde otoczenie.
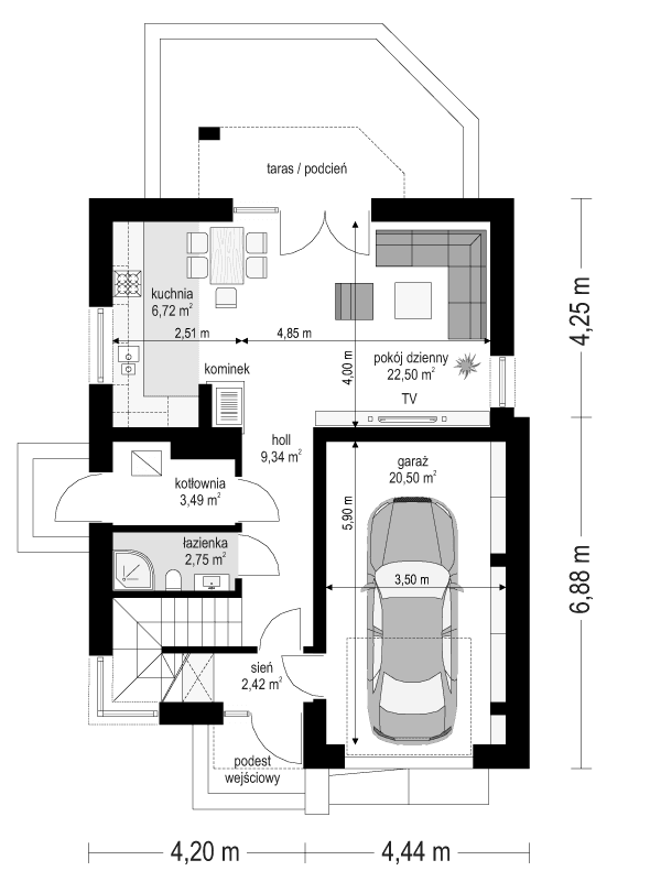
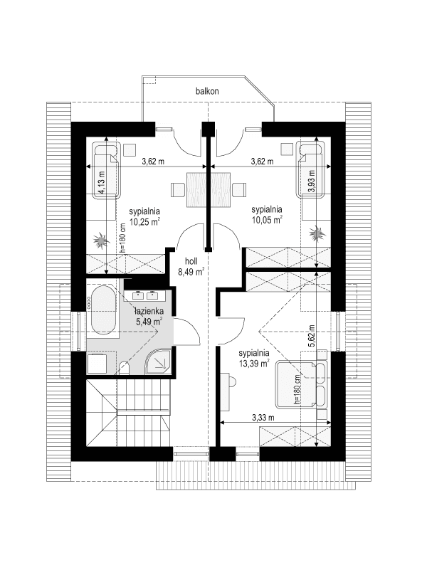
Projekt Na swoim nadaje się na bardzo wąską działkę, o szerokości nieco ponad 16 metrów. Rzadko można spotkać projekt o właściwych proporcjach, z garażem, który zmieści się na tak wąskiej parceli. Wnętrze domu Na Swoim to: na parterze - część dzienna z pokojem dziennym i otwartą kuchnią, garaż, kotłownia z osobnym wejściem, łazienka i bardzo praktyczne schody umieszczone blisko wejścia (dzięki temu dzieci nie skaczą rodzicom po głowie w salonie, gdy wchodzą i wychodzą z i do domu). Na poddaszu projektu Na Swoim zaplanowano trzy sypialnie z łazienką. Dzięki zwartej bryle i bardzo dobrym izolacjom przegród, dom Na Swoim jest wyjątkowo energooszczędny. Bardzo łatwo go dostosować do standardu NF40. Prosta bryła, łatwa konstrukcja pozwolą też na szybką, łatwą i niedrogą budowę projektu Na Swoim. Projekt domu Na Swoim dostępny jest także w wersji odbicia lustrzanego.
Materiały:
- Fundamenty betonowe ławy i ściany fundamentowe z bloczków betonowych
- Ściany zewnętrzne ściany murowane - pustaki porotherm 25 + styropian + tynk cienkowarstwowy
- Strop monolityczny żelbetowy
- Elewacje tynk cienkowarstwowy na styropianie
- Pokrycie dachu dachówka ceramiczna













