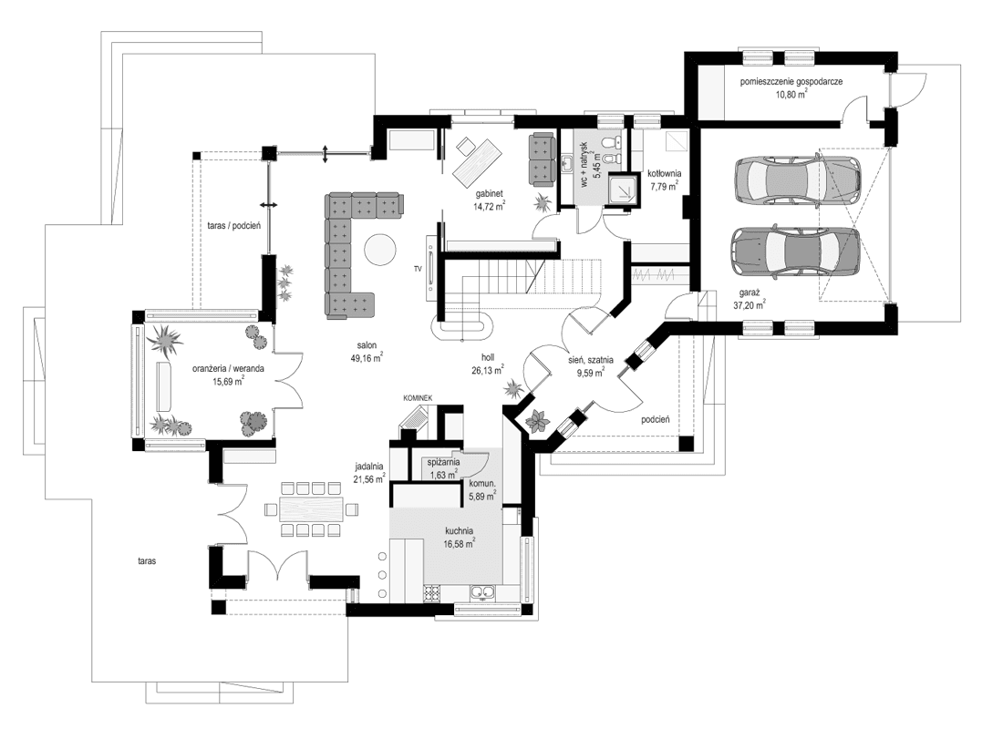
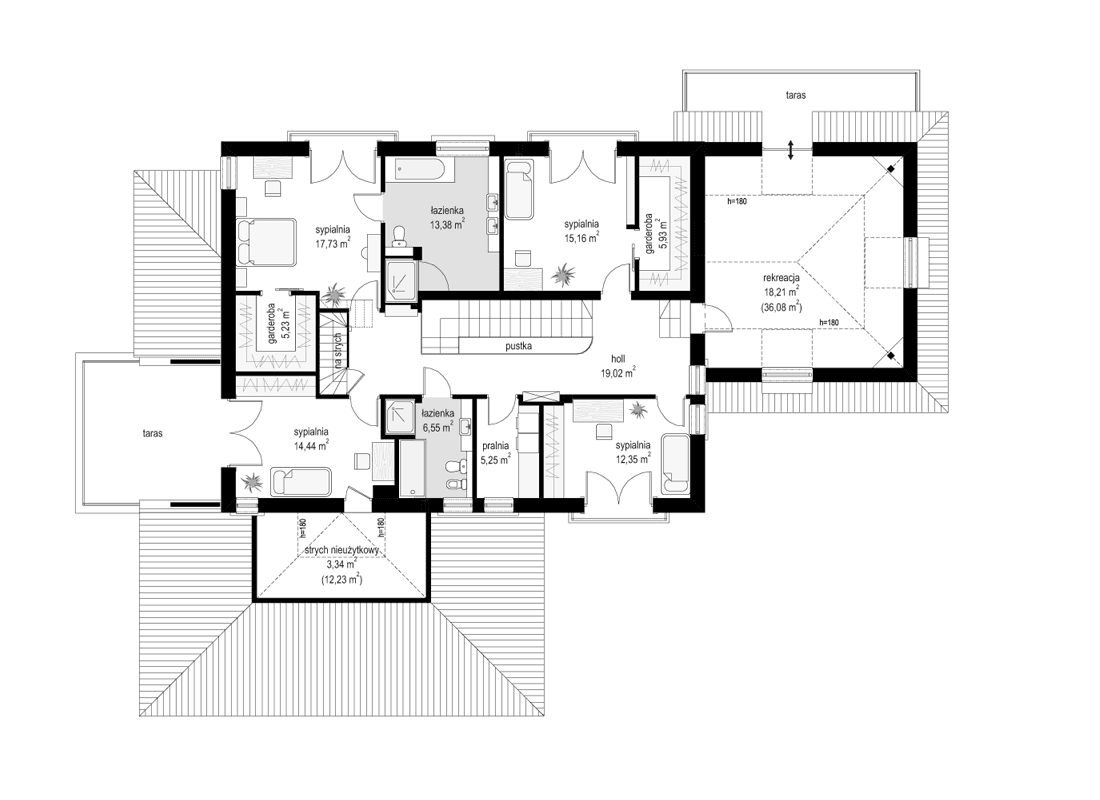
Projekt domu Malibu to wspaniała podmiejska rezydencja na ładną działkę. Budynek urzeka pięknymi otwarciami pomieszczeń na ogród, oraz bardzo reprezentacyjnym wejściem. Piętrowy dom, zaprojektowano łącząc ze sobą trzy bryły: dwukondygnacyjną główną bryłę budynku, oraz dwie parterowe z poddaszami - garażową i kryjącą kuchnię i jadalnię. Wejście ze ściętego narożnika, przez podcień stanowi złamanie formy typowego wejścia do rezydencji. Inspiracją przy projektowaniu domu Malibu były wzory śródziemnomorskich, włoskich czy francuskich willi, co zdecydowanie wyróżnia go spośród architektury polskiej tradycji dworkowej. Złamanie zasady symetrii bryły i wnętrza dało wolność w kształtowaniu funkcji poszczególnych pomieszczeń. Dom Malibu, jak na rezydencję w południowym stylu przystało otoczony jest tarasami, podcieniami, dużymi przeszkleniami, łączącymi wnętrze z otaczającym ogrodem. Dodatkowym urozmaiceniem są balkony i tarasy na piętrze. Wnętrze domu to: otwarta jednoprzestrzenna część dzienna, z salonem, jadalnią, pięknie przeszkloną oranżerią, reprezentacyjnym holem i częściowo otwartą kuchnią. Dodatkowo na parterze zaplanowano pokój - gabinet, oraz garaż i pomieszczenia techniczne. Na piętrze mieszczą się cztery sypialnie z garderobami i dwiema łazienkami, oraz pralnia, pokój rekreacyjny nad garażem, oraz osobne schody na strych nad piętrem, gdzie można zaaranżować duży pokój - studio, lub pozostawić strych. Budynek jest duży, reprezentacyjny, ale zaprojektowano go bez niepotrzebnej rozrzutności, z dbałością o funkcjonalność każdego fragmentu wnętrza. Pracownia posiada projekt domu Malibu w odbiciu lustrzanym.
Materiały:
- Fundamenty betonowe ławy i ściany fundamentowe z bloczków betonowych
- Ściany zewnętrzne ściany murowane - pustaki porotherm 25 + styropian + tynk cienkowarstwowy
- Strop Teriva
- Elewacje tynk cienkowarstwowy na styropianie
- Pokrycie dachu dachówka





















