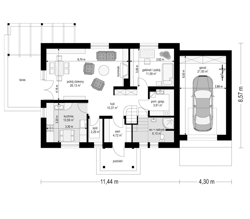
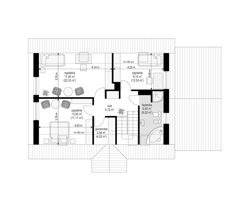
Projekt domu Leśny Zakątek to parterowy dom z poddaszem użytkowym i garażem przeznaczony dla 4- 6-osobowej rodziny. Budynek można posadowić na działce z niekorzystnym nasłonecznieniem. Architektura projektu nawiązuje do prostych, tradycyjnych form i detali, w nowoczesnym ujęciu. Dzięki użyciu naturalnych materiałów: cegły, drewna, dachówki ceramicznej - dom doskonale komponuje się z otoczeniem. Wnętrze domu Leśny Zakątek ma układ półotwarty - pokój dzienny przestrzennie łączy się z holem oraz z tarasem. W dużej kuchni zaprojektowano stół do szybkich posiłków. Na parterze znajdują się ponadto: pokój (gabinet lub sypialnia), pomieszczenie gospodarcze, wc z natryskiem i garaż. Na poddaszu umieszczono trzy wygodne sypialnie, łazienkę i garderobę. Projekt domu Leśny Zakątek dostępny jest również w wersji odbicia lustrzanego, oraz wersji powiększonej, ze zmienionym układem pomieszczeń (Projekt domu Leśny Zakątek 2).
Materiały:
- Fundamenty betonowe ławy i ściany fundamentowe z bloczków betonowych
- Ściany zewnętrzne 1. pustaki ceramiczne max + styropian + tynk cienkowarstwowy 2. pustki silikatowe (lub z betonu komórkowego) + wełna mineralna + cegła
- Strop Teriva
- Elewacje tynk cienkopowłokowy + cegła klinkierowa
- Pokrycie dachu blachodachówka lub dachówka ceramiczna













