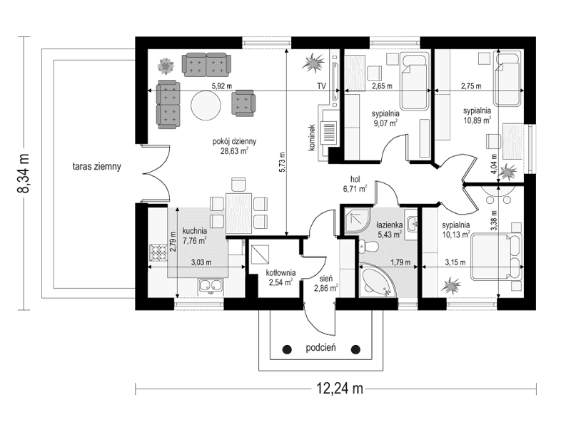
Projekt domu Kropka to nieduży domek jednorodzinny dla czteroosobowej rodziny. Parterowy, zbudowany na planie prostokąta budynek, przekryty został czterospadowym dachem. Front domku ozdabia ganek wejściowy wsparty na dwóch kolumnach. Wygląd zewnętrzny domu nawiązuje do architektury polskiego dworku, ale we współczesnym ujęciu. Projekt stworzono z myślą o działce z ogrodem z boku - wyjście drzwiami balkonowymi z salonu i taras znajdują się od strony elewacji bocznej. Wewnątrz domu znajduje się obszerny pokój dzienny, z częściowo otwartą kuchnią, trzy sypialnie, łazienkę, oraz pomieszczenie gospodarcze - kotłownię, dostępną z przedsionka wejściowego. Na niedużej powierzchni udało się zaprojektować wygodne czteropokojowe mieszkanie z zapleczem technicznym. Ściany wewnątrz można dowolnie przestawiać - żadna nie pełni funkcji konstrukcyjnej. Konstrukcję dachu zaprojektowano z drewnianych wiązarów. Projekt domu Kropka dostępny jest również w odbiciu lustrzanym.
Materiały:
- Fundamenty betonowe ławy i ściany fundamentowe z bloczków betonowych
- Ściany zewnętrzne ściany murowane - bloczki gazobetonowe 24 + styropian + tynk cienkowarstwowy
- Strop drewniane wiązary kratownicowe
- Elewacje tynk cienkowarstwowy na styropianie
- Pokrycie dachu dachówka












