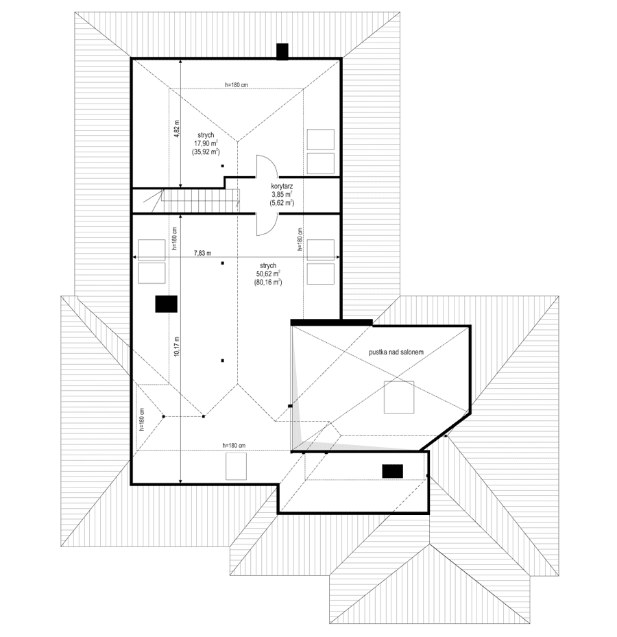
Projekt domu Komfortowy 2 jest powiększoną wersją projektu Komfortowy. Ma bardziej rozbudowany plan parteru oraz duży strych, który można wykorzystać jako poddasze użytkowe. Budynek składa się z dwóch części: dziennej - z holem, salonem, jadalnią i kuchnią - tworzącymi jednoprzestrzenną całość, oraz części nocnej - z sypialnią rodziców, gabinetem, dwiema sypialniami dzieci, pokojem kąpielowym. Każda z sypialni ma własną garderobę, sypialnia rodziców - własną łazienkę. Części domu rozdzielono garażem i pomieszczeniami gospodarczymi. Poddasze można zaadaptować na dodatkowe pokoje. Projekt domu Komfortowy 2 zaprojektowano na planie litery L - tak, aby tarasy, przeszklenia, podcień tworzyły wewnętrzne patio. Komfortowy 2 to duży, przestronny dom, który zapewni idealne miejsce do życia dla rodziny 4-5 osobowej. Zapraszamy do zapoznania się z innymi projektami domów: projekt domu Komfortowy, projekt domu Komfortowy 2, projekt domu Komfortowy 3.
Materiały:
- Fundamenty betonowe
- Ściany dwuwarstwowe: gazobeton + styropian lub wełna mineralna
- Strop Teriva
- Pokrycie dachu dachówka ceramiczna


















