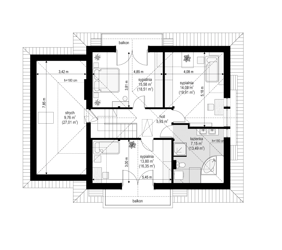
Projekt domu Julka 2 to pomniejszony wariant projektu Julka - z pojedynczym garażem i mniejszym strychem nad garażem. Domek stanowi idealną propozycję dla 4- 5-osobowej rodziny, która marzy o własnych czterech ścianach. Projekt domu Julka 2 stworzono na planie kwadratu, z dobudowanym garażem. Parter i poddasze wieńczy kopertowy dach, którego urozmaiceniem są lukarny z balkonami. Architektura zewnętrzna domu to tradycyjny Polski "dachowiec", z ciekawie dobranymi oknami i drzwiami balkonowymi, z ozdobnymi wykuszami i podcieniem ogrodowym, umożliwiającym przebywanie na tarasie w niepogodę. Wejście do domu Julka 2 zaakcentowano dwiema kolumnami, na których wspiera się balkonik frontowej lukarny. Wewnątrz dom zaprojektowano z podziałem na część dzienną na parterze i na część nocną - intymną z sypialniami na poddaszu. Większość powierzchni parteru zajmuje przestronna - jak na tą skalę domu - część dzienna z salonem, jadalnią, holem i półotwartą kuchnią. Schody stanowią dekoracyjny element wnętrza. Pozostała przestrzeń to garaż i pomieszczenia gospodarcze. Istnieje możliwość zagospodarowania pomieszczenia przy wejściu na pokój - gabinet lub biuro (likwidując połączenie z garażem). Na poddaszu miejsce znalazły trzy wygodne sypialnie - każda z własną szeroką lukarną, oraz łazienka. Dodatkowo można zaadaptować strych na dodatkowy pokój. Pracownia dysponuje wariantem odbicia lustrzanego projektu Julka 2 oraz kilkoma wariantami : podstawowa (projekt domu Julka), z dachem dwuspadowym i garażem dwustanowiskowym (projekt domu Julka 3), z garażem jednostanowiskowym (projekt domu Julka 4).
Materiały:
- Fundamenty betonowe ławy i ściany fundamentowe z bloczków betonowych
- Ściany zewnętrzne ściany murowane - pustaki porotherm 25 + styropian + tynk cienkowarstwowy
- Strop Teriva
- Elewacje tynk cienkowarstwowy na styropianie
- Pokrycie dachu dachówka




















