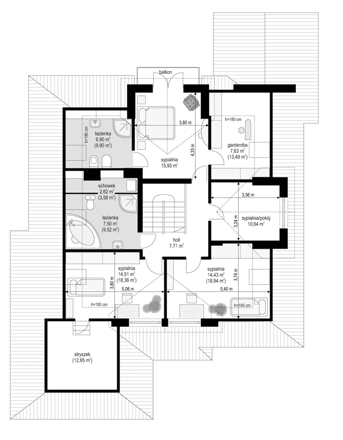
Projekt domu Hornówek to dom jednorodzinny dla rodziny 4- 5-osobowej. Wyróżnia go o atrakcyjna, rozłożysta bryła z łagodnym wielospadowym dachem, w który wkomponowano duże lukarny. Obszerny podcień frontowy i weranda od strony ogrodu chronią przed deszczem lub zbyt ostrym słońcem. Wnętrze zaprojektowano z podziałem na część dzienną - otwartą i jednoprzestrzenną, łączącą się poprzez szerokie przeszklenia z ogrodem, oraz część gospodarczą z garażem dwustanowiskowym. W bocznym skrzydle domu Hornówek zaplanowano dodatkowy pokój na parterze - gabinet lub sypialnię gościnną. Całość wnętrza łączy reprezentacyjny holl z wygodnymi schodami na poddasze. Na piętrze zaprojektowano trzy sypialnie - w tym jedna z osobną łazienką i garderobą, z balkonem z widokiem na ogród. Na poddaszu umieszczono jeszcze dodatkowy - czwarty pokój. Dostępna jest wersja odbicia lustrzanego projektu domu Hornówek oraz projekt domu Hornówek 2. Zapraszamy!
Materiały:
- Fundamenty żebetowe wylewane
- Ściany zewnętrzne dwuwarstwowe porotherm 30 + 12 wełna (lub styropian) + tynk cienkowarstwowy, lub gazobeton + styropian
- Strop żelbetowy Teriva
- Elewacje tynk cienkowarstwowy
- Pokrycie dachu dachówka ceramiczna lub blachodachówka













