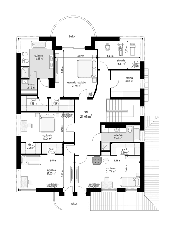
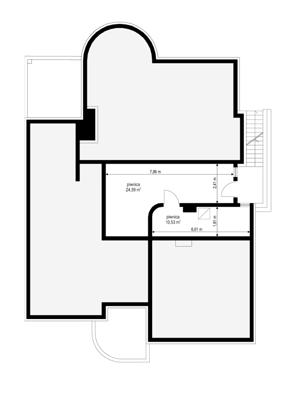
Projekt domu Gabriela 2 prestiżowy dom o jednopiętrowej bryle przekryty czterospadowym dachem. Dom przeznaczony jest dla 4- 6-osobowej rodziny. Architektura domu nawiązuje do stylu modernistycznego, we współczesnym ujęciu. Elementy jak narożne okna, balkony z zaokrąglonymi balustradami, łukowy wykusz jadalni, podział elewacji na poziome pasy tworzą ciekawą stylistycznie architekturę zewnętrzną budynku. Dla projektu domu Gabriela 2 przewidziano kilka różnych wariantów aranżacji elewacji. Wnętrze domu: na parterze przestrzeń dzienna składająca się z salonu, jadalni z pięknym łukowym wykuszem, przestronnego holu z wygodnymi schodami na piętro, obszernej kuchni z aneksem na szybkie posiłki. Z pokoju dziennego wychodzimy do podcienia i na taras. Na parterze zaprojektowano również gabinet, garaż i kotłownię. Na piętrze znajduje się apartament rodziców z łazienką, garderobą i tarasem na ogród; trzy sypialnie dzieci, z łazienką, oraz pralnią i pokój sportowy. Dla domu przewidziano również częściowe podpiwniczenie - piwnica dostępna z zewnątrz domu, schodkami z ogrodu. Z piwnicy można zrezygnować jeśli warunki gruntowe nie pozwalają na jej budowę. Projekt domu Gabriela 2 dostępny jest również w innych wersjach: odbicia lustrzanego, projekt domu Gabriela oraz projekt domu Gabriela 3. Zapraszamy!
Materiały:
- Fundamenty betonowe wylewane
- Ściany zewnętrzne dwuwarstwowe porotherm 25 lub U220 + 15 styropian
- Strop żelbetowy monolityczny płytowy
- Elewacje tynk cienkowarstwowy
- Pokrycie dachu blachodachówka lub dachówka



















