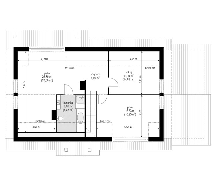
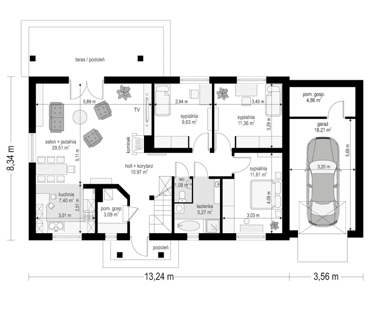
Projekt domu Fraszka 2 to budynek jednorodzinny dla 4- 7-osobowej rodziny, z możliwością rozwoju i zmiennymi potrzebami lokalowymi. Dzięki dodatkowym pomieszczeniom na poddaszu i bliskości schodów od wejścia dom można z powodzeniem podzielić nawet na dwa niezależne mieszkania. Prostota konstrukcji domu, łatwy do wykonania dach to niepodważalne zalety projektu. Na parterze prócz salonu połączonego z kuchnią i holem zaprojektowano trzy sypialnie. Na poddaszu mieszczą się dodatkowo trzy ładne pokoje. Dom Fraszka 2 może zamieszkiwać duża rodzina, lub dwie rodziny. Można też mieszkając na parterze wykorzystać poddasze jako jednoprzestrzenne studio o dowolnej funkcji - rekreacyjnej czy np. związanej z pracą. Do części mieszkalnej domu został dodany garaż z pomieszczeniem gospodarczym. Projekt domu Fraszka 2 dostępny jest także w wersji odbicia lustrzanego. Zapraszamy również do obejrzenia projektu bazowego projekt domu Fraszka.
Materiały:
- Fundamenty ławy betonowe, ściany z bloczków
- Ściany zewnętrzne dwuwarstwowe: gazobeton + wełna
- Ściany wewnętrzne gazobeton
- Strop monolityczne żelbetowe płytowe
- Elewacje tynk cienkowarstwowy
- Pokrycie dachu dachówka


















