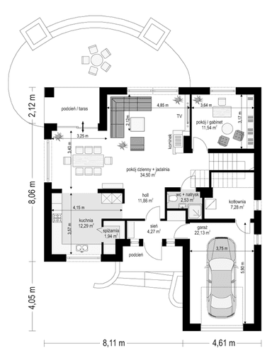
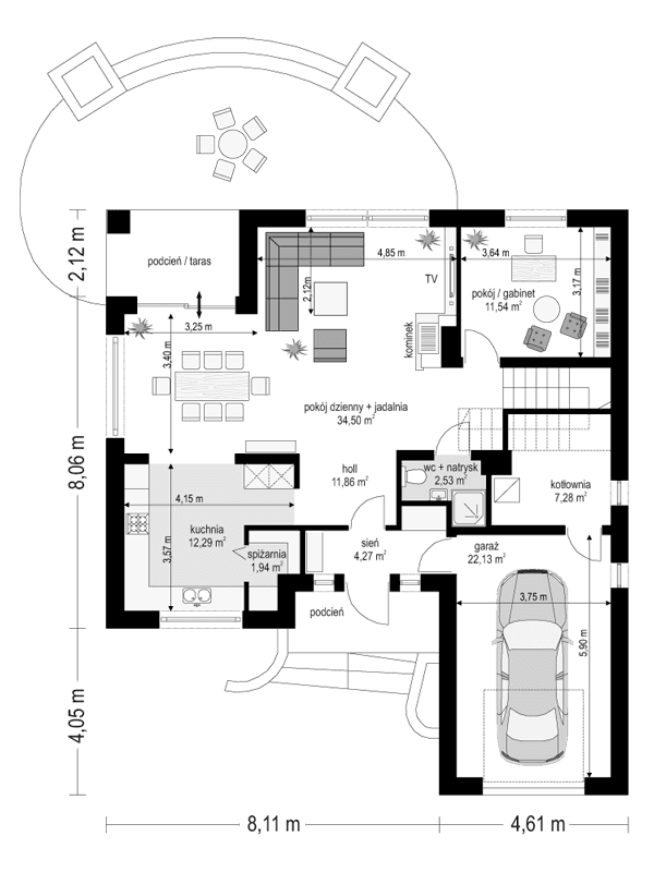
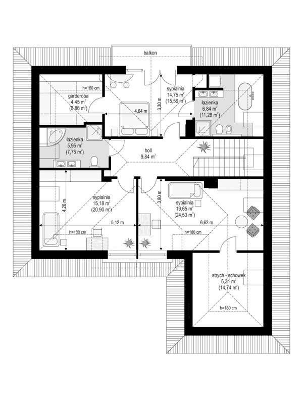
Projekt domu Fantazja to piękna podmiejska willa z dopracowanym detalem architektonicznym, oraz funkcjonalnym wnętrzem. Dom Fantazja to budynek parterowy, z poddaszem użytkowym. Zaprojektowano go dla 4-5 osobowej rodziny. Główna bryła budynku przekryta jest czterospadowym dachem. Do budynku dokomponowano garaż, oraz dodano dwie duże lukarny - od frontu i od ogrodu. Kształt dachu, lukarn, okapy, ściany parteru z szerokim pasem podmurówki, masywne kominy - wszystkie te elementy przywołują wspomnienie przedwojennych domów - solidnych i długowiecznych, wrośniętych w otoczenie. Połączenie historyzującego detalu i nowoczesnych materiałów tworzą harmonijną całość. Wnętrze domu podzielono na strefę dzienną na parterze i sypialnie na poddaszu. Na dole jedną przestrzeń dzienną tworzą salon, jadalnia, hol z ładnymi wyeksponowanymi schodami i centralnym komikiem, oraz częściowo otwarta kuchnia. Dodatkowy pokój przy schodach może pełnić funkcję gabinetu lub sypialni. W projekcie domu Fantazja, na parterze zaplanowano również garaż, pomieszczenie gospodarcze - kotłownię, oraz przedsionek. Na poddaszu zaprojektowano trzy bardzo wygodne i przestronne sypialnie. Sypialnia rodziców - to osobny apartament - z balkonem na ogród, własną łazienką i dużą garderobą. Sypialnie dzieci mają osobną łazienkę i duże wnęki szaf zabudowanych. Z jednej sypialni można dostać się na strych nad garażem. Wnętrze domu połączone jest z ogrodem przez dużymi oknami i szerokim wyjściem na częściowo zadaszony taras. Pracownia posiada odbicie lustrzane projektu domku Fantazja.
Materiały:
- Fundamenty betonowe ławy i ściany fundamentowe z bloczków betonowych
- Ściany zewnętrzne ściany murowane - pustaki porotherm 25 + styropian + tynk cienkowarstwowy
- Strop Teriva
- Elewacje tynk cienkowarstwowy na styropianie
- Pokrycie dachu dachówka




















