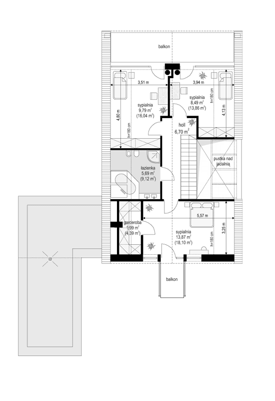
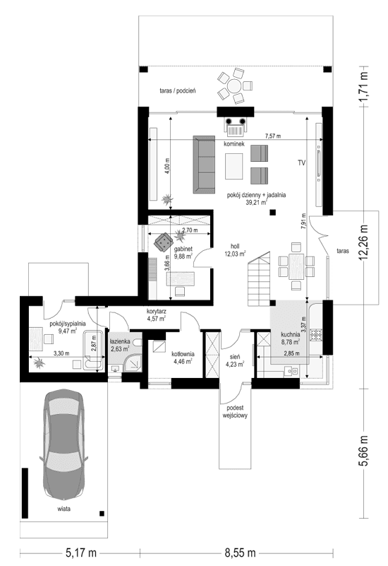
Projekt domu Domino to wyjątkowy dom jednorodzinny, o ciekawej, nietuzinkowej architekturze. Zarówno jego forma architektoniczna, układ brył, detale wykończeniowe i zastosowane materiały - czynią z niego budynek oryginalny i niepowtarzalny. Nowoczesna stylistyka idzie tutaj w parze z funkcjonalnością, oraz z energooszczędnością budynku. Głównym założeniem projektu było uzyskanie prostej bryły przykrytej dwuspadowym dachem z minimalnymi okapami i zaplanowanie wnętrz domu na osi wzdłuż kalenicy - od wejścia, do ściany ogrodowej salonu, z dużymi przeszkleniami i centralnie umieszczonym kominkiem. Frontowy „balkon-mostek”, będący jednocześnie zadaszeniem nad wejściem, oraz wyciągnięty dach nad tarasem od strony ogrodu, powiększają efekt wizualny wydłużenia budynku. Uzupełnienie i przełamanie kompozycji stanowi dobudowana z boku parterowa bryła z płaskim dachem, kryjąca wiatę garażową i dodatkowy pokój. Wnętrze domu zaplanowano w taki sposób, aby maksymalnie uatrakcyjnić przestrzeń dzienną. Mamy tutaj: jednobiegowe nowoczesne schody połączone z pustką nad jadalnią, jadalnię z pięknym przeszkleniami i świetlikiem w dachu, salon z dużymi przeszkleniami na zadaszony taras i ogród, oraz centralnie ustawionym kominkiem, holl i częściowo otwartą kuchnię. Na parterze mamy aż dwa dodatkowe pokoje, łazienkę i kotłownię. Na poddaszu z kolei przewidziano trzy sypialnie, łazienkę i garderobę rodziców. Zarówno wnętrze jak i wygląd zewnętrzny domu zaprojektowano z myślą o Inwestorach lubiących ciekawe, nietuzinkowe rozwiązania i nowoczesną architekturę. Dom jest przy tym łatwy w budowie, ma prostą konstrukcję. Projekt domu Domino dzięki swojej prostocie i zwartości, oraz świetnym izolacjom jest też energooszczędny i będzie niedrogi w utrzymaniu (można go łatwo dostosować do standardu NF40). Zapraszamy !
Materiały:
- Fundamenty betonowe ławy i ściany fundamentowe z bloczków betonowych
- Ściany zewnętrzne ściany murowane - pustaki porotherm 25 + styropian + tynk cienkowarstwowy
- Strop monolityczny żelbetowy
- Elewacje tynk cienkowarstwowy na styropianie
- Pokrycie dachu blacha na rąbek stojący


















