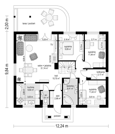
Projekt domu Cztery Kąty 4 stworzono z myślą o rodzinie 3- 4-osobowej. Cztery Kąty 4 to budynek parterowy, przekryty czterospadowym dachem, z zadaszonym portykiem wejściowym i podcieniem tarasowym od strony ogrodu. Zwarta prostokątna bryła domu jest łatwa w budowie i niedroga w eksploatacji. Nad stropem nad parterem kryje się strych do wykorzystania na magazyn, co rekompensuje brak innych pomieszczeń gospodarczych w domu. Spokojna, tradycyjna forma architektoniczna budynku wpisze się doskonale w każdy podmiejski krajobraz. Domek jest przytulny i proporcjonalny. Wnętrze domu Cztery Kąty 4 podzielono na część dzienną z salonem, holem i półotwartą kuchnią, oraz część nocną - z trzema sypialniami, łazienką i niewielkim pomieszczeniem kotłowni. Wejście do kotłowni można zaprojektować z zewnątrz - wówczas można dom ogrzewać kotłem na paliwo stałe. Z pokoju dziennego wychodzi się szerokimi drzwiami na częściowo zadaszony taras do ogrodu. Pracownia posiada wersję odbicia lustrzanego projektu Cztery Kąty 4. Zapraszamy do zapoznania się z pełną ofertą pracowni MG Projekt: projekt domu Cztery Kąty w odbiciu lustrzanym oraz kilka wersji: z garażem jednostanowiskowym (projekt domu Cztery Kąty 2), z poddaszem (projekt domu Cztery Kąty 3), bez garażu (projekt domu Cztery Kąty 4).
Materiały:
- Fundamenty betonowe ławy i ściany fundamentowe z bloczków betonowych
- Ściany zewnętrzne ściany murowane -pustaki gazobetonowe 24 cm + styropian + tynk cienkowarstwowy
- Strop drewniany belkowy
- Elewacje tynk cienkowarstwowy na styropianie
- Pokrycie dachu dachówka




















