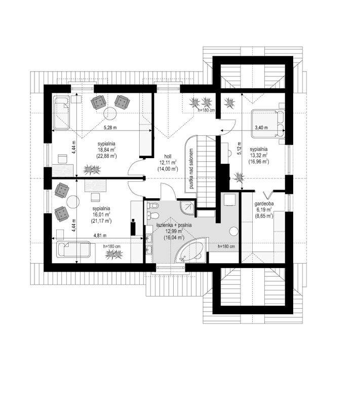
Projekt domu Cukiereczek to sympatyczny domek jednorodzinny dla rodziny 4- 6-osobowej. Cukiereczek to parterowy dom z poddaszem użytkowym, przekryty dwuspadowym dachem, częściowo wbudowanym w bryłę garażem. Architektura Cukiereczka stanowi połączenie skromnego, oszczędnego w detale wyglądu zewnętrznego, z jednoczesnym zachowaniem ludzkiej skali bryły. Projekt domu Cukiereczek charakteryzuje się funkcjonalnym, logicznie zaplanowanym wnętrzem. Na parterze zaprojektowano obszerny salon z częściowo oddzieloną jadalnią, z której jest połączenie z półotwartą kuchnią i wyjście do podcienia ogrodowego i na taras. W salonie przewidziano miejsce na wbudowany w ścianę kominek. Z salonu widoczne są także częściowo schody, zaczynające swój bieg w holu - tuż przy wejściu. Na parterze zaplanowano też dodatkowy pokój - gabinet lub sypialnię gościnną, oraz część gospodarczą, z garażem i kotłownią. Na poddaszu zaprojektowano trzy duże sypialnie, w tym sypialnię rodziców z dużą garderobą, oraz bardzo ładną rodzinną łazienkę z kącikiem na pralnię i suszarnię. Pracownia posiada wersję odbicia lustrzanego projektu domu Cukiereczek.
Materiały:
- Fundamenty betonowe ławy i ściany fundamentowe z bloczków betonowych
- Ściany zewnętrzne ściany murowane - pustaki porotherm 25 + styropian + tynk cienkowarstwowy
- Strop Teriva
- Elewacje tynk cienkowarstwowy na styropianie
- Pokrycie dachu dachówka


















