Projekt domu Bryza 3: mały, wygodny i tani dom z poddaszem
Bryza 3 to mały, ale wygodny dom z poddaszem. Jego powierzchnia użytkowa wynosi 139,8 m2, co wystarcza dla rodziny 4-5 osobowej. Dom jest zaprojektowany w nowoczesnym stylu, ale jednocześnie jest przytulny i przyjazny.
Dom jednorodzinny z poddaszem
Projekt domu Bryza 3 to propozycja dla osób, które szukają funkcjonalnego i wygodnego domu jednorodzinnego z poddaszem. Dom ten jest przeznaczony dla 4-5 osobowej rodziny.
Prosta bryła i niedrogie materiały
Budynek ma prostą, łatwą w budowie bryłę, która jest pokryta dwuspadowym dachem. Ściany zewnętrzne wykonane są z bloczków betonowych, strop jest żelbetowy, a dach pokryty blachodachówką. Dzięki zastosowaniu tradycyjnych materiałów dom jest tani w budowie i utrzymaniu.
Wygodna strefa dzienna i nocna
Na parterze znajduje się wygodna strefa dzienna, składająca się z salonu z aneksem kuchennym oraz pokoju. Salon jest połączony z aneksem kuchennym, dzięki czemu powstaje jedno duże, przestronne pomieszczenie, w którym można wygodnie spędzać czas z rodziną i przyjaciółmi.
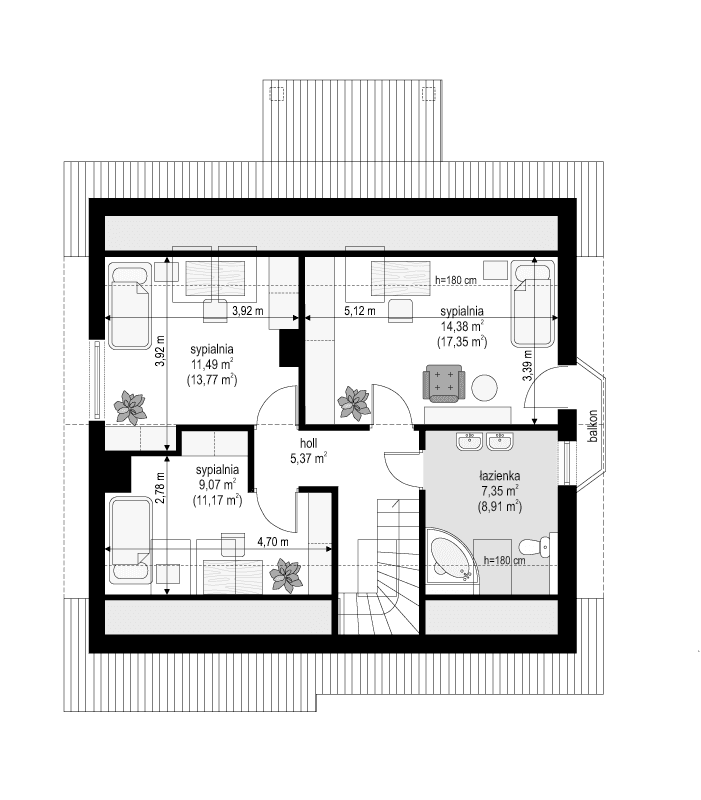
Na poddaszu znajdują się trzy sypialnie z łazienką. Sypialnie są przestronnie i komfortowe, z możliwością wydzielenia miejsca na garderobę. Łazienka jest wyposażona w wannę, prysznic, umywalkę i WC.
Dodatkowe pomieszczenia
Na parterze znajdują się również kotłownia, przedsionek, kuchnia i schowek-spiżarnia, ukryta pod schodami. Od strony ogrodu w projekcie przewidziano częściowo schowany pod dachem podcienia taras.
Funkcjonalność i komfort
Projekt domu Bryza 3 to propozycja dla osób, które szukają funkcjonalnego i wygodnego domu jednorodzinnego z poddaszem. Dom ten jest idealny dla 4-5 osobowej rodziny.
Atrakcyjny wygląd
Dom Bryza 3 ma nowoczesny, ale przytulny wygląd. Prosta bryła budynku sprawia, że dom jest łatwy do adaptacji do działki o dowolnym kształcie.
Tani w budowie
Dzięki zastosowaniu tradycyjnych materiałów i prostej konstrukcji dom Bryza 3 jest tani w budowie.
Atuty projektu
Bryza 3 to dom, który ma wiele zalet. Jest to:
tani w budowie - dzięki prostej konstrukcji i wykorzystaniu tradycyjnych materiałów, koszt budowy domu Bryza 3 jest stosunkowo niski.
wygodny - dom jest dobrze rozplanowany i posiada wszystkie niezbędne pomieszczenia.
energooszczędny - dom jest ocieplony styropianem o grubości 20 cm, co zapewnia niskie koszty ogrzewania.
Opinie o projekcie:
"Dom Bryza 3 to idealny wybór dla osób, które szukają funkcjonalnego i wygodnego domu jednorodzinnego z poddaszem. Dom jest tani w budowie i utrzymaniu, a jego nowoczesny wygląd sprawia, że jest bardzo atrakcyjny. Jesteśmy bardzo zadowoleni z naszego domu i polecamy go wszystkim, którzy planują budowę domu." Magda













