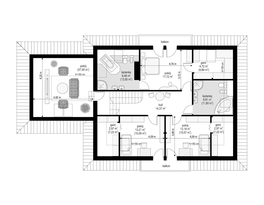
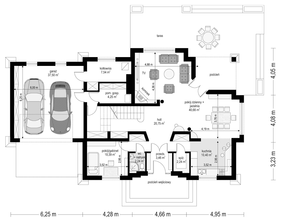
Projekt domu Benedykt 2 to parterowy budynek jednorodzinny, z poddaszem przekrytym wielospadowym dachem z szerokimi lukarnami. Architektura Benedykta 2 nawiązuje do tradycyjnego polskiego dworku, w nowoczesnym ujęciu. Balkoniki, łukowe okna, duże przeszklenia otwierające salon na ogród, wykusze i narożniki ścian ozdobione przyporami - wszystko to daje harmonijną, estetyczną bryłę, jednocześnie reprezentacyjną i przytulną. Wnętrze domu Benedykt 2 to obszerny salon z wydzielonym miejscem na jadalnię, półotwarta kuchnia, przestronny holl z wygodnymi schodami, dodatkowy pokój i zaplecze techniczne z garażem. Na poddaszu zaprojektowano sypialnie dzieci z garderobami i apartament rodziców z osobną łazienką. W projekcie Benedykt 2 istnieje możliwość zagospodarowania strychu nad garażem. Zapraszamy do zapoznania się z pełną ofertą pracowni MG Projekt: projekt domu Benedykt, projekt domu Benedykt 2, projekt domu Benedykt 3, projekt domu Benedykt 4, projekt domu Benedykt 5, projekt domu Benedykt Bliźniak.
Materiały:
- Fundamenty betonowe
- Ściany dwuwarstwowe max lub porotherm + wełna (styropian)
- Strop Teriva
- Pokrycie dachu dachówka ceramiczna lub blachodachówka




















