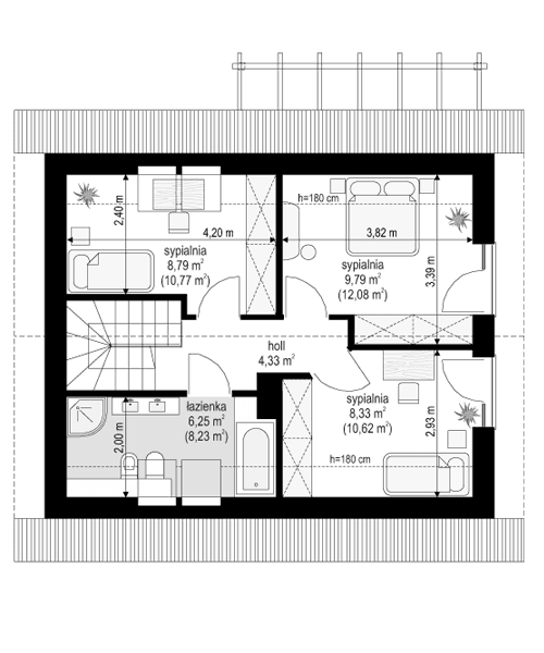
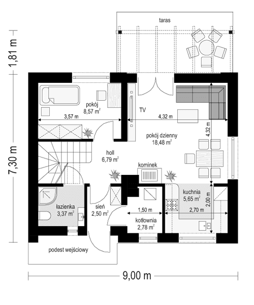
Projekt domu Ania jest odpowiedzią na potrzebę wygodnego mieszkania dla trzy- czteroosobowej rodziny. Kto nie wolałby mieszkać w takiej perełce zamiast w trzech pokojach w bloku? Projekt domu Ania to sympatyczny domek parterowy z użytkowym poddaszem. Jego bezpretensjonalna architektura z łatwością wkomponuje się w każde otoczenie. Prosta nowoczesna forma architektoniczna zbudowana na planie prostokąta, z dwuspadowym symetrycznym dachem, daje poczucie porządku i harmonii. Dzięki nieskomplikowanej bryle, konstrukcja domu jest łatwa i tania w budowie. Nowoczesne materiały wykończeniowe i okładziny ścian elewacji - urozmaicają front z podcieniem wejściowym. Elewację ogrodową ozdabia drewniana pergola nad tarasem dostępnym z salonu. Wnętrze domu jak na niewielką powierzchnię użytkową jest bardzo pojemne. Mieści się w nim - na parterze : część dzienna z salonem, kuchnią, holem z wygodnymi schodami, oraz dodatkowy pokój ( sypialnia lub gabinet ), łazienka i kotłownia ( gazowa, która może też być z piecem na paliwo stałe). Natomiast na poddaszu mieszczą się trzy wygodne sypialnie z łazienką. Tym samym, jak na domek o powierzchni użytkowej 82 m2, Ania jest bardzo funkcjonalnie zaprojektowana. To nie koniec zalet projektu :-). Dom jest bardzo dobrze ocieplony, a nowoczesne instalacje i technologie sprawiają, że jest energooszczędny i tani w przyszłej eksploatacji. Koszt budowy jest bardzo rozsądny, ponieważ projekt domu Ania ma prostą konstrukcję właściwy stosunek kubatury do ilości przegród zewnętrznych. Jest to doskonały dom dla oszczędnych, świadomych Inwestorów, którzy planują swój przyszły dom na miarę możliwości i rzeczywistych potrzeb. Projekt Ania występuje w wersji bez garażu, ale bardzo łatwo można doprojektować jedno lub dwustanowiskowy garaż do elewacji bocznej. Pracownia MGProjekt posiada wersję odbicia lustrzanego projektu.
Materiały:
- Fundamenty betonowe ławy i ściany fundamentowe z bloczków betonowych
- Ściany zewnętrzne ściany murowane - pustaki porotherm 25 + styropian + tynk cienkowarstwowy
- Strop Teriva
- Elewacje tynk cienkowarstwowy na styropianie
- Pokrycie dachu dachówka ceramiczna




















