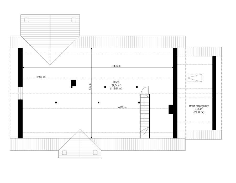
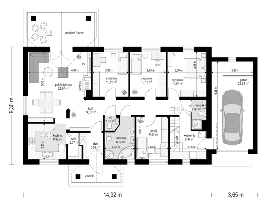
Projekt domu Anatol to wygodny, parterowy dom dla rodziny 4- 6-osobowej, o bardzo stonowanej architekturze. Projekt Anatol łączy w sobie prostotę, nowoczesną racjonalność i tradycyjny detal architektoniczny. Parterowa bryła budynku przekryta dwuspadowymi dachami, kryje w sobie dodatkową przestrzeń strychu, który po zaadaptowaniu, może służyć jako poddasze użytkowe. Dzięki przemyślanym proporcjom, oraz dodatkom, takim jak ganek frontowy na kolumienkach, czy duża ogrodowa weranda, przekryta dwuspadowym dachem - dom Anatol jest jednocześnie prosty, ciekawy i elegancki. We wnętrzu domku, prócz przestronnego salonu połączonego z holem i kuchnią, zaprojektowano dodatkowo cztery pokoje, duże pomieszczenie gospodarcze, dwie łazienki i wc. To wystarczająca ilość pomieszczeń nawet dla dość licznej rodziny. Dobudowany do głównej bryły garaż jest powiększony o dodatkowe pomieszczenie gospodarcze. Schody na strych prowadzą z pomieszczenia gospodarczego - kotłowni. W przypadku adaptacji strychu na poddasze użytkowe należy zmienić układ ścianek działowych kotłowni łazienki i włączyć schody do holu. Dostępna jest także wersja odbicia lustrzanego projektu Anatol. Zapraszamy do zapoznania się z pełną ofertą pracowni MG Projekt: projekt domu Anatol 2.
Materiały:
- Fundamenty betonowe ławy i ściany fundamentowe z bloczków betonowych
- Ściany zewnętrzne ściany murowane - pustaki porotherm 25 + styropian + tynk cienkowarstwowy
- Strop drewniany belkowy
- Elewacje tynk cienkowarstwowy na styropianie
- Pokrycie dachu dachówka




















