Projekt domu Ametyst to budynek jednorodzinny dla rodziny 4- 6-osobowej. Budynek piętrowy przykryty wielospadowym dachem.
Projekt domu Ametyst architektura
Zwarta, prosta w budowie bryła domostwa z dobudowanym garażem, została urozmaicona okładziną klinkierową elewacji, oraz podcieniami - wejściowym i ogrodowym.
W projekcie domu Ametyst położyliśmy szczególny nacisk na czystość i prostotę formy budynku. Oszczędny detal dodaje domowi dyskretnej elegancji.
Wnętrze domu Ametyst
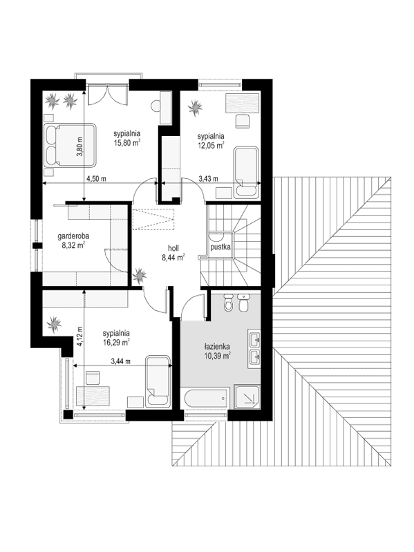
Wnętrze domu Ametyst również zaplanowano tak, aby podziały pomieszczeń były klarowne - bez zbędnych korytarzy, a same pokoje miały optymalny kształt.
W projekcie domu Ametyst na parterze zaprojektowano salon z jadalnią i holem, z częściowo otwartą kuchnią, oraz dodatkowy pokój - gabinet lub sypialnię gościnną. Na piętrze projektu domu Ametyst projektant umieścił trzy sypialnie z garderobami i wbudowanymi szafami, oraz dużą łazienkę.
Istnieje możliwość wygospodarowania dodatkowego, czwartego pokoju na piętrze projektu Ametyst - likwidując garderobę.
Ametyst ma nieskomplikowaną bryłę, dzięki czemu koszt budowy domu jednorodzinnego będzie niski. Min wymiary działki niezbędne do realizacji projektu to 18,95 m szerokości i 20,82 m długości.
Dostępna jest także wersja odbicia lustrzanego projektu Ametyst.
Zapraszamy do zapoznania się z pełną ofertą pracowni architektonicznej MG Projekt, projekt domu Ametyst występuje też jako projekty: połowa bliźniaka (projekt domu Ametyst wariant B) i wersja projekt domu Ametyst 2
Materiały:
- Fundamenty betonowe ławy i ściany fundamentowe z bloczków betonowych
- Ściany zewnętrzne ściany murowane - pustaki porotherm 25 + styropian + tynk cienkowarstwowy
- Strop Teriva
- Elewacje tynk cienkowarstwowy na styropianie
- Pokrycie dachu dachówka


















