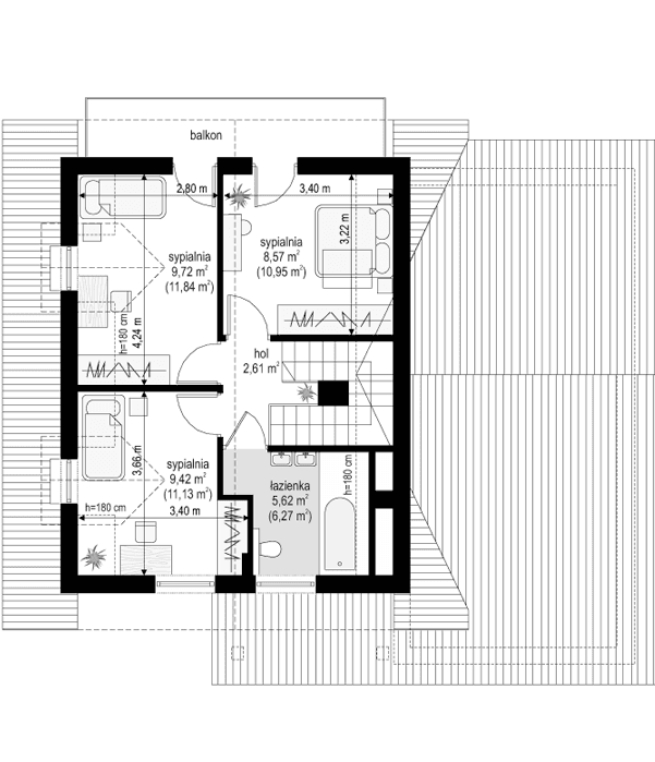
Projekt domu Amelia to nieduży dom parterowy z poddaszem użytkowym dla 4- 5-osobowej rodziny. Budynek przekryty został dwuspadowymi dachami, w projekcie przewidziano również garaż. Prostą, bezpretensjonalną bryłę domu Amelia zestawiono z nowoczesnym, oszczędnym detalem, co dodaje domowi elegancji. Dodatkową ozdobą domu są fragmenty elewacji wykończone drewnianą okładziną oraz płytkami klinkierowymi. Na parterze, oprócz jednoprzestrzennej części dziennej, z salonem, holem, otwartą kuchnią i centralnie usytuowanymi schodami, zaprojektowano dodatkowy pokój (np. sypialnię lub pokój do pracy), garaż, oraz łazienkę z miejscem na kocioł c.o. Na poddaszu zaplanowano trzy sypialnie z łazienką. Dom mimo niewielkiej powierzchni mieści w sobie wiele funkcji - w niewielu projektach domów tej wielkości znaleźć można cztery pokoje oraz salon, dwie łazienki i przestronny garaż. Pracownia posiada odbicie lustrzane projektu domu Amelia.
Materiały:
- Fundamenty betonowe ławy i ściany fundamentowe z bloczków betonowych
- Ściany zewnętrzne ściany murowane - pustaki porotherm 25 + styropian + tynk cienkowarstwowy
- Strop Teriva
- Elewacje tynk cienkowarstwowy na styropianie
- Pokrycie dachu dachówka


















