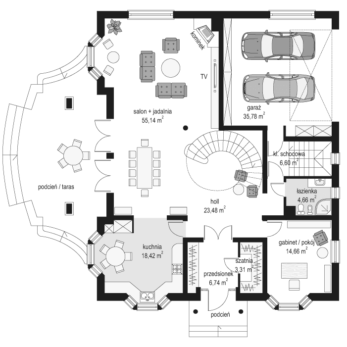
Projekt domu Ambasador 2 to reprezentacyjny, duży dom, na działkę z ogrodem usytuowanym po bocznej stronie. Elewację frontową domu zaprojektowano jako symetryczną, z wykuszami po bokach i ciekawym portykiem wejściowym. W projekcie Ambasador 2 garaż został umieszczony w tylnej części domu, aby nie zaburzać willowego nastroju wrotami garażowymi lub stojącymi na podjeździe autami. Elewacja ogrodowa budynku ozdobiona została wykuszami oraz eleganckim tarasem z tralkami na piętrze, tworzącym jednocześnie duży podcień dostępny z salonu na parterze. Wnętrze domu to duże pomieszczenia, dodatkowo łączące się przestrzennie, hol z klasycznymi zabiegowymi schodami, czy wysoki hol-galeria na piętrze ze świetlikami w dachu. Zaprojektowana w ten sposób przestrzeń tworzy eleganckie, komfortowe miejsce do życia. Dom Ambasador 2 posiada częściowe podpiwniczenie. Zapraszamy do zapoznania się z pełną ofertą pracowni MG Projekt: Dostępna jest również wersja odbicia lustrzanego projektu Ambasador 2 oraz wersja mniejsza o 48 m2 projekt domu Ambasador 3 wersja podstawowa projekt domu Ambasador
Materiały:
- Fundamenty ławy betonowe, ściany z bloczków
- Ściany zewnętrzne dwuwarstwowe z porothermu
- Strop Teriva
- Elewacje tynk cienkowarstwowy
- Pokrycie dachu dachówka + papa termozgrzewalna



















