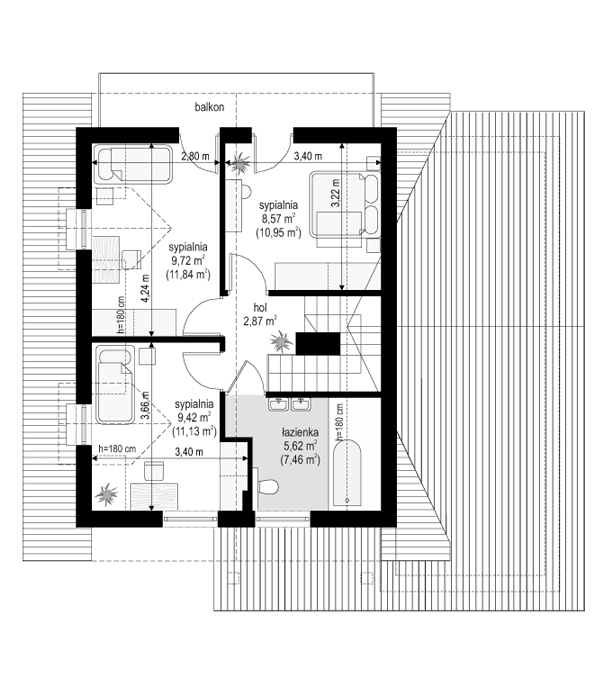
Projekt domu Alicja to propozycja dla rodziny 4- 5-osobowej. Dom parterowy, z poddaszem użytkowym, przykryty dwuspadowymi dachami, z dobudowanym garażem. Domek Alicja zaprojektowano w spokojnej stylistyce z przenikającymi się tradycyjnymi i nowoczesnymi detalami. Zwarta bryła budynku z dobudowanym garażem, została ozdobiona lukarnami, oraz balkonem w elewacji ogrodowej. We wnętrzu domu zaplanowano na parterze połączony hol, oraz salon tworzące otwartą przestrzeń dzienną. Otwarta kuchnia łączy się z aneksem jadalnym dodatkowo powiększając wnętrze. Centralnie usytuowane schody na poddasze, oraz ściana kominkowo-telewizyjna stanowią główną oś podziału przestrzeni. Na parterze przewidziano dodatkowy pokój, mogący służyć jako gabinet lub dodatkowa sypialnia. Z dużej łazienki z natryskiem wydzielono aneks techniczny z miejscem na kocioł c.o. Na poddaszu zaprojektowano trzy sypialnie, oraz łazienkę. Pracownia posiada także wersję odbicia lustrzanego projektu domu Alicja oraz wariant projekt domu Alicja wariant B
Materiały:
- Fundamenty betonowe ławy i ściany fundamentowe z bloczków betonowych
- Ściany zewnętrzne ściany murowane - bloczki gazobetonowe + styropian + tynk cienkowarstwowy
- Strop Teriva
- Elewacje tynk cienkowarstwowy na styropianie
- Pokrycie dachu dachówka


















