Endo 3: Piękny i Funkcjonalny Dom Parterowy dla Całej Rodziny
Szukasz wyjątkowego i funkcjonalnego domu parterowego dla swojej rodziny? Endo 3 to idealny wybór! Ten piękny dom zachwyca nie tylko eleganckim designem, ale również przemyślanym układem pomieszczeń i energooszczędnością. Charakterystyka domu: piękny dom parterowy, dom tani w budowie, projekt domu taniego w budowie, projekt parterowy z dachem dwuspadowym
Prostota i elegancja
Endo 3 to dom parterowy z użytkowym poddaszem. Prosta bryła budynku, przykryta dwuspadowym dachem, nadaje mu elegancki i nowoczesny charakter. Elewacja łączy w sobie prostotę z estetyką, tworząc harmonijną całość.
Funkcjonalność na co dzień
Wnętrze domu Endo 3 zostało zaprojektowane z myślą o komforcie i wygodzie całej rodziny. Na parterze znajduje się typowa strefa dzienna, czyli salon, kuchnia z jadalnią oraz toaleta. Strefa dzienna została wzbogacona o antresolę, która otwiera przestrzeń i umożliwia ciekawą aranżację wnętrza.
W części intymnej parteru znajdują się trzy sypialnie i łazienka. Taka aranżacja zapewnia prywatność i komfort wszystkim domownikom.
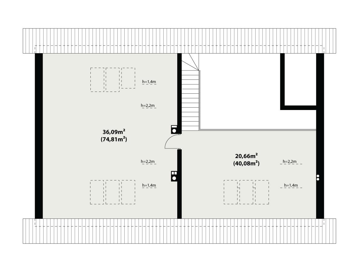
Poddasze do adaptacji
Poddasze w Endo 3 to dodatkowa przestrzeń, którą można zaadaptować na różne potrzeby. Może tam powstać pokój dla gości, sypialnia, gabinet, a nawet sala zabaw dla dzieci.
Dom tani w budowie i eksploatacji
Endo 3 to dom tani w budowie i eksploatacji. Prosta bryła budynku i dwuspadowy dach sprawiają, że koszty budowy są niższe niż w przypadku bardziej skomplikowanych projektów. Energooszczędne rozwiązania, takie jak docieplenie ścian i dachu, pozwalają na ograniczenie kosztów ogrzewania.
Dom dla każdego
Endo 3 to idealny dom dla każdego, kto szuka funkcjonalnego i komfortowego miejsca do życia. Jest to doskonały wybór dla rodzin z dziećmi, jak również dla par i singli.
Opinia klienta:
"Bardzo podoba nam się prosta bryła domu i dwuspadowy dach. Dzięki temu dom jest tani w budowie i eksploatacji.
Endo 3 to dla nas nie tylko dom, ale prawdziwy azyl. Czujemy się tu komfortowo i bezpiecznie. Polecamy ten projekt wszystkim, którzy szukają dobrego domu dla swojej rodziny."


















