Monte 5 to projekt małego domku. Uroczy i przytulny, a do tego prosty i tani w budowie. Mimo niewielkiego rozmiaru, jest bardzo wygodny w użytkowaniu i oferuje przestronne wnętrze. Atutem projektu jest duży salon otwarty na kuchnię. Centralnie umieszczony kominek i wyeksponowane schody, tworzą niezwykle atrakcyjną przestrzeń. Co ważne, na parterze zaprojektowano, również, pokój gościnny, oraz dodatkową łazienkę, dzięki czemu poddasze pozostanie strefą wyłącznie dla domowników.
Dom posiada kotłownię na paliwo stałe, oddzieloną od części mieszkalnej garażem. Dodatkowo zaprojektowano instalację gazową dla osób chcących korzystać z ogrzewania gazowego.
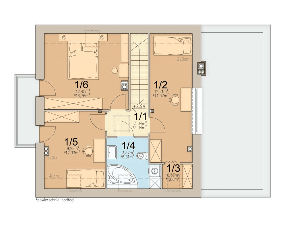
Na poddaszu znajdują się trzy komfortowe pokoje, garderoba, oraz duża łazienka z miejscem na pralkę w zabudowie. Aby w pełni wykorzystać powierzchnie pod skosami dachu, zaprojektowano wysoką ścianę kolankową. Tworząc projekt Monte nie zapomniano także o kwestiach finansowych.Dzięki bardzo prostej formie i konstrukcji dom jest bardzo ekonomiczny.A zastosowane rozwiązania energooszczędne, zapewnią niskie koszty eksploatacji.
Fundamenty żelbetowe, ściany nośne i działowe z pustaków ceramicznych, strop monolityczny, konstrukcja dachu drewniana, dachówka ceramiczna lub betonowa.
Projekty domów jednorodzinnych w stylu nowoczesnym i tradycyjnym.

























