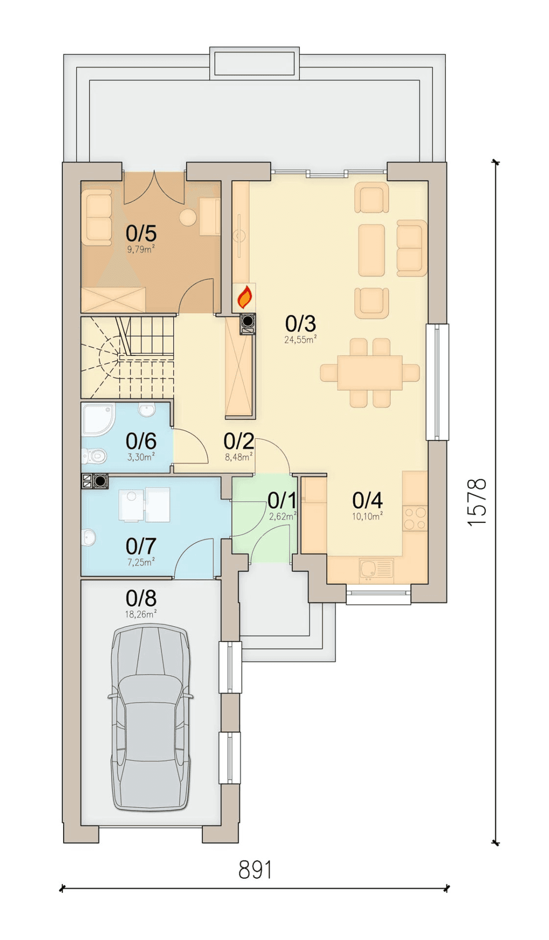
Lungo 2 to projekt domu na wąską działkę. Dzięki niewielkiej szerokości, dom można wybudować na działce, której front ma zaledwie 16m długości. Mimo tych ograniczeń, udało się zaprojektować wygodny układ funkcjonalny z przestronnym salonem i kuchnią zlokalizowaną od frontu.
Prosta forma w połączeniu z naturalnymi materiałami, sprawiają, że dom odznacza się elegancją, oraz sprawia wrażenie ciepłego i przytulnego.
Dzięki dobrze zagospodarowanej przestrzeni, dom będzie bardzo wygodny w użytkowaniu.
Dużym atutem projektu jest otwarty salon z miejscem na jadalnię i centralnie umieszczonym kominkiem. Co ważne, na parterze zaprojektowano, również, pokój gościnny, oraz dodatkową łazienkę, dzięki czemu poddasze pozostanie strefą wyłącznie dla domowników.
Dom posiada kotłownię na paliwo stałe, oddzieloną od części mieszkalnej wiatrołapem. Dodatkowo zaprojektowano instalację gazową dla osób chcących korzystać z ogrzewania gazowego.
Na poddaszu znajdują się dwa komfortowe pokoje, sypialnia połączona z garderobą, oraz duża łazienka i pralnia.
Aby w pełni wykorzystać powierzchnie na poddaszu, pod skosami dachu, zaprojektowano wysoką ścianę kolankową.
Tworząc projekt Lungo 2 nie zapomniano także o kwestiach finansowych.
Dzięki bardzo prostej formie i konstrukcji dom jest tani i łatwy w budowie.
A zastosowane rozwiązania energooszczędne, zapewnią niskie koszty eksploatacji.
Fundamenty żelbetowe, ściany nośne i działowe z pustaków ceramicznych, strop monolityczny konstrukcja dachu drewniana, dachówka ceramiczna lub betonowa.
Projekty domów jednorodzinnych w stylu nowoczesnym i tradycyjnym.












