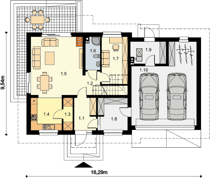
Klasyczny dom z użytkowym poddaszem i dostawionym garażem. Prosta bryła, sprawdzone rozwiązania konstrukcyjne i jednocześnie przejrzysty, niezwykle przemyślany układ wnętrz, to bez wątpienia zalety tego budynku. Do środka dostajemy się przez dużych rozmiarów wiatrołap, w którym wygospodarowano miejsce na praktyczne szafy przesuwne. W ciągu dnia domownicy mogą relaksować się w dużym, dobrze oświetlonym salonie, z którego na zewnątrz prowadzą dwa wyjścia – bezpośrednio na ogród i drugie, zaraz przy jadalni. Takie rozwiązanie sprawia, że dom nadaje się na działkę z wjazdem zarówno od północy, jak również od południa. Pokój dzienny połączono z kuchnią, którą w razie potrzeby można oddzielić ścianką działową. Nie zapomniano także o dużej, praktycznej spiżarni. Na parterze znalazł się jeszcze jeden pokój, który można przeznaczyć np. na gabinet oraz duża łazienka z prysznicem. Do dwustanowiskowego garażu dostajemy się bezpośrednio z wiatrołapu przez dużych rozmiarów pomieszczenie gospodarcze, które może pełnić rolę garderoby, pralni lub składu akcesoriów ogrodowych. Zaraz za garażem znalazła się kotłownia z bezpośrednim wyjściem na ogród. Jest ona na tyle duża, że bez trudu pomieści piec na ekogroszek. W budynku zaprojektowano dwa rodzaje ogrzewania: GAZOWE oraz na PALIWO STAŁE. Inwestor zadecyduje, które z nich wykorzysta. Na piętrze znajdują się trzy ustawne pokoje i duża łazienka z miejscem na wannę i prysznic. Główna sypialnia została połączona ze sporą garderobą, ze spocznika schodów dostaniemy się natomiast do pomieszczenia nad garażem, wydzielono w nim pralnię i schowek, reszta powierzchni może pełnić rolę strychu, miejsca zabaw lub po prostu dodatkowego pokoju. Dom jest prosty i tani w budowie, jego elewację można wykończyć zarówno w nowoczesny jak i klasyczny sposób. Budynek zaprojektowano w oparciu o najnowsze przepisy prawa budowlanego, z dużą dbałością o jego wpływ na środowisko naturalne.
Uwaga! Dokumentacja Projektowa nie zawiera elementów małej architektury takich jak: donice, podesty, altany, grille ogrodowe, murki, pergole, a także innych elementów wizualizacji, takich jak: garaże i wiaty wolnostojące, drogi, podjazdy, ogrodzenia, baseny itp.
Tanie w budowie projekty domów, funkcjonalne układy pomieszczeń.

















