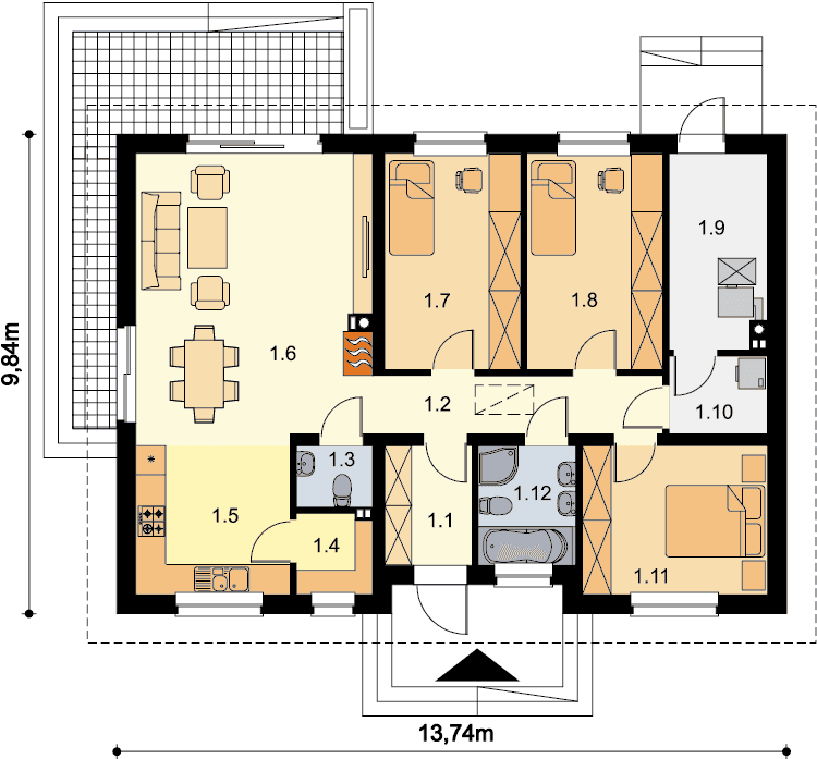
Prosty, funkcjonalny i nowoczesny dom parterowy przeznaczony dla 3-4 osobowej rodziny. W ciągu dnia domownicy mogą się relaksować w dużym, dobrze oświetlonym salonie. Z pokoju dziennego na zewnątrz prowadzą dwa wyjścia – bezpośrednio na ogród i drugie, zaraz przy jadalni. Takie rozwiązanie sprawia, że dom nadaje się na działkę z wjazdem zarówno od północy, jak również od południa. Salon jest połączony z dużą, otwartą kuchnią, w sąsiedztwie której znajduje się praktyczna spiżarnia. Nie zapomniano również o dodatkowej toalecie. W razie potrzeby kuchnia może być oddzielona od pokoju dziennego ścianką działową. Centralne usytuowania kominka ułatwi ogrzewanie domu zimą. Strefa nocna to 3 ustawne pokoje i łazienka, w której zmieści się wanna i prysznic. Strefę gospodarczą zaplanowano na krańcu budynku, składają się na nią: pralnia oraz duża kotłownia, z bezpośrednim wyjściem na zewnątrz. W korytarzu przewidziano schody składane, umożliwiające dostęp na sporych rozmiarów strych. W domu zaprojektowano dwa rodzaje ogrzewania: GAZOWE oraz na PALIWO STAŁE. Od przyszłego inwestora zależy, które z nich wykorzysta. Dom ma prostą bryłę i nieskomplikowany dach, dzięki czemu jest tani w budowie i późniejszej eksploatacji. Budynek zaprojektowano w oparciu o najnowsze przepisy prawa budowlanego, z dużą dbałością o jego wpływ na środowisko naturalne.
Uwaga! Dokumentacja Projektowa nie zawiera elementów małej architektury takich jak: donice, podesty, altany, grille ogrodowe, murki, pergole, a także innych elementów wizualizacji, takich jak: garaże i wiaty wolnostojące, drogi, podjazdy, ogrodzenia, baseny itp.
Tanie w budowie projekty domów, funkcjonalne układy pomieszczeń.















