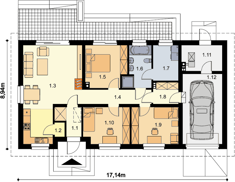
Mały, urokliwy dom parterowy z garażem przeznaczony dla 3-4 osobowej rodziny. Wnętrze budynku podzielono na 3 strefy. Strefa dzienna to przestronny, dobrze oświetlony salon, połączony z otwartą kuchnią, w sąsiedztwie której znajduje się praktyczna spiżarnia. Kuchnię, w razie potrzeby, można w łatwy sposób wydzielić, odgradzając ją ścianką od pokoju dziennego. Centralne usytuowania kominka ułatwi ogrzewanie domu zimą. Strefa nocna to 3 ustawne pokoje i łazienka, w której zmieści się wanna i prysznic, połączono ją z dużą i wygodną pralnią. W głównej sypialni przewidziano miejsce na ciąg praktycznych szaf przesuwnych. Posiada ona także wyjście na taras. W skład strefy gospodarczej wchodzi kotłownia znajdująca się za garażem, do którego dostaniemy się przez wygodną garderobę bezpośrednio z korytarza domu. W budynku zaprojektowano strop drewniany, ma to istotny wpływ na obniżenie kosztów budowy. Na strych dostaniemy się natomiast przy pomocy schodów składanych. W domu zaplanowano ogrzewanie na PALIWO STAŁE. Dom ma prostą bryłę i nieskomplikowany dach, dzięki czemu jest tani w budowie i późniejszej eksploatacji. Budynek zaprojektowano w oparciu o najnowsze przepisy prawa budowlanego, z dużą dbałością o jego wpływ na środowisko naturalne.
Uwaga! Dokumentacja Projektowa nie zawiera elementów małej architektury takich jak: donice, podesty, altany, grille ogrodowe, murki, pergole, a także innych elementów wizualizacji, takich jak: garaże i wiaty wolnostojące, drogi, podjazdy, ogrodzenia, baseny itp.
Tanie w budowie projekty domów, funkcjonalne układy pomieszczeń.





















