Fidel
Specyfikacja i charakterstyka projektu
Wizualizacja projektu
Parametry podstawowe
Parametry techniczne projektu
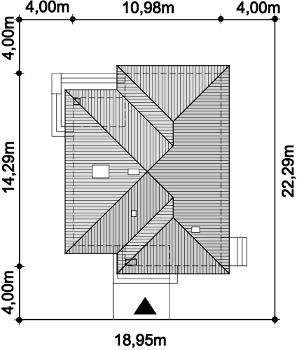
Rzuty projektu - kondygnacje i działka
📂 Uzyskaj rysunki szczegółowe do projektu
Szczegółowy opis projektu
Powiązane kategorie
Informacje szczegółowe
➡ Najczęściej wprowadzane zmiany, warianty i adaptację projektu
💰 Szacunkowy koszt realizacji budowy projektu
🚀 Wycena budowy projektu w technologii szkieletowej/modułowej
Zalety zakupu projektu na wybieramprojekt.pl
Nasze biuro posiada szeroki zakres usług związanych z adaptacją gotowych projektów do warunków konkretnej działki, doradztwem w zakresie kosztorysów i technologii oraz budową domu. Do zakupu każdego projektu dodajemy również obszerny pakiet korzyści.
Pakiet korzyści w zestawie przy zakupie projektu
Uzyskaj informacje o korzystnych kredytach na budowę domu
Skorzystaj z bezpłatnej pomocy eksperta finansowego
💼 Zawartość gotowego projektu architektoniczno-budowlanego
Każdy PROJEKT GOTOWY to wysokiej jakości dokumentacja architektoniczno-techniczna sporządzona wedle wytycznych Prawa Budowlanego, pozwalajaca złożyć dokumentację w urzędzie do zgłoszenia budowy lub do pozwolenia na budowę. Wszystkie nasze projekty gotowe i projekty gotowe autorów, z którymi współpracujemy są zweryfikowane i posiadają zaświadczenie o zgodności projektu z PB. Dostępność i aktualizacje każdego projektu są indywidualnie potwierdzane.
Każdy gotowy projekt jest zgodny z Prawem Budowlanym i zawiera:
- Projekt opisowo-architektoniczny
- Projekt techniczny
- Zgodę na modyfikację projektu i adaptację
- Kopię uprawnień architektów i branżystów
- Projekty domów posiadają charakterystykę energetyczną (brak w projektach garaży i gospodarczych)
Szczegółową zawartość projektu możesz sprawdzić na stronie:
Zawartość projektu gotowego
Każdy projekt gotowy domu jednorodzinnego możemy zanalizować pod kątem zgodności z działką i omówić zmiany planowane w projekcie. Z nami zyskujesz kompleksowo bezpieczeństwo zakupu projektu!
✍🏻 Standardowa zgoda na zmiany do projektu
Co możesz modyfikować?
Standardowa zgoda to szeroki zakres możliwości. Pamiętaj od nas UZYSKASZ INDYWIDUALNĄ DODTAKOWĄ ZGODĘ BEZPŁATNIE na Twoje życzenie.
STANDARDOWO DOŁĄCZANA ZGODY NA ZMIANY obejmuje:
- zmianę funkcji użytkowania pomieszczeń,
- zmiany technologiczne i materiałowe - rodzaj stropu, materiały ścienne, izolacyjne i wykończeniowe, pokrycie dachowe,
- dostosowanie posadowienia budynku do warunków geotechnicznych,
- wykonanie podpiwniczenia budynku,
- zmiany usytuowania ścian działowych,
- zmiana wielkości, ilości i lokalizacji otworów drzwiowych i okiennych,
- zmiana nachylenia kąta połaci dachowej do 5 stopni,
- zmiany w wymiarach zewnętrznych budynku w zakresie 5%,
- zmiana materiałów instalacyjnych i przebiegu instalacji wewnętrznych.
- Warto uzyskać dodatkowa zgodę na zmiany* :
- zmianę sposobu ogrzewania budynku,
- zmianę usytuowania kominów,
- likwidację/doprojektowanie balkonów, podcieni, lukarn,
- zmianę usytuowania i kształtu tarasu,
- podniesienie ścianki kolankowej,
- zmianę wysokości budynku.
w/w zmiany pojawiają się bardzo często już na etapie wykonywania adaptacji, czy też realizacji budowy.
Potrzebujesz więcej informacji technicznych dotyczących projektu, by zamówić projekt domu, zapraszamy. Informację dotyczące warunków zakupu i zwrotów dostępne są na stronie Regulaminu, o szczegółach dotyczących czasu realizacji projektu, warunków zakupu i warunków wymian lub zwrotów poinformuje doradca po sprawdzeniu konkretnych warunków zakładanych przez konkretnego autora projektu.
Warunki zwrotów
WARUNKI ZWROTU PROJEKTU: do 30 dni Kupujący, który zawarł umowę sprzedaży na odległość (telefonicznie lub przez Internet) może od niej odstąpić bez podania przyczyny (Ustawa z dnia 30.05.2014 r. o prawach konsumenta (Dz. U. z 2014, poz. 827), składając stosowne oświadczenie na piśmie, w terminie 30 dni kalendarzowych od dnia otrzymania rzeczy. Formularz Oświadczenia dołączony jest do każdego sprzedawanego bezpośrednio za pośrednictwem naszego serwisu projektu gotowego. Forma zgłoszenia chęci odstąpienia od umowy sprzedaży może być dowolna: telefoniczna, drogą elektroniczną lub pisemną na adres naszego biuro. Koszty przesyłki zwracanego projektu gotowego ponosi Kupujący. Zwracany projekt gotowy musi być oryginalny, oryginalnie zszyty i kompletny, nie może zawierać widocznych śladów użytkowania (śladów adaptacji czy podpisów ewentualnego architekta adaptującego). Kupujący dołącza oświadczenie o nie kopiowaniu dokumentacji (Formularz odstąpienia od umowy) W przypadku nie spełnienia tych warunków należność za projekt nie zostanie zwrócona. UWAGA: zwrotowi nie podlegają dodatki (kosztorysy, projekty rekuperacji, projekty ogrzewania podłogowego itp.) dokupione w późniejszym terminie, po zakupie projektu. Zwrot dodatku/dodatków zostanie przyjęty tylko jeżeli zostały one zakupione od razu z całą kompletną dokumentacją projektową i inwestor zwróci cały kompletny, nienaruszony i niezniszczony pakiet (projekt wraz z dodatkami).
Wymiana: do 365 dni Zamawiający ma prawo do jednokrotnej wymiany zakupionej dokumentacji projektowej, w nieprzekraczalnym terminie do 365 dni kalendarzowych od daty zakupu projektu. Do 30 dni od daty wystawienia faktury wymiana projektu jest bezpłatna, powyżej 30 dni od daty wystawienia faktury koszt wymiany projektu wynosi 500 zł. Zasady wspomnianej wymiany, wraz z ustaleniem ewentualnych dodatkowych kosztów należy każdorazowo ustalać ze Sprzedającym. Wymianie może podlegać dokumentacja kompletna, bez widocznych uszkodzeń, zwrócona w stanie nienaruszonym. Projekt nie spełniający powyższych warunków nie zostanie przyjęty do wymiany. Koszty przesyłki towaru wymienianego i tego, na który następuje wymiana ponosi Zamawiający. Przesyłki nadane na koszt Sprzedającego nie będą przyjmowane i będą zwracane nadawcy. Jeżeli wystąpi różnica w cenie wymienionych projektów, Kupujący i Sprzedający są zobowiązani pokryć różnicę.
Informacje ogólne dotyczące działania sklepu internetowego zawarte są na stronie Regulaminu
















