Ajaks Modern jest wersją domu Ajaks Bis. Przy zachowaniu sprawdzonej funkcjonalności w budynku zmodyfikowano parter, usunięto lukarnę, podniesiono ściankę kolankową, a całości nadano niepowtarzalnego, nowoczesnego wyglądu.
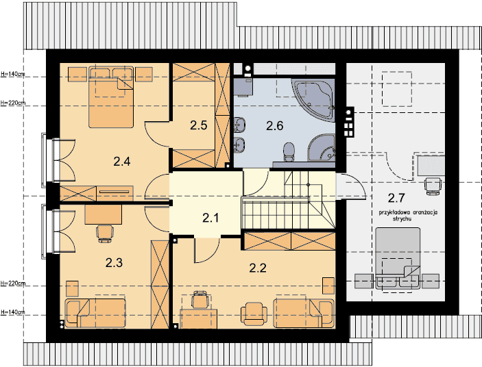
Do środka dostajemy się teraz przez spory wiatrołap, w którym znalazło się miejsce na ciąg praktycznych szaf przesuwnych. Na parterze domu znajduje się przestronny, dobrze oświetlony salon, o powierzchni powyżej 30m², sąsiaduje z nim dodatkowy pokój, który można przeznaczyć na gabinet lub pokój gościnny. Otwarta kuchnia z praktyczną spiżarnią może być oddzielona, w razie potrzeby, od pokoju dziennego ścianką działową. Z przodu budynku znalazła się łazienka, a z wiatrołapu dostajemy się wprost do garażu. Za garażem zlokalizowano sporą kotłownię z bezpośrednim wyjściem do ogrodu. Jest ona na tyle duża, że bez trudu pomieści piec na ekogroszek. W budynku zaprojektowano dwa rodzaje ogrzewania: GAZOWE oraz na PALIWO STAŁE (projekt zawiera schematy i rozwinięcia instalacji c.o. i elektrycznych, obydwu sposobów ogrzewania). Inwestor zadecyduje, które z nich wykorzysta. Na piętrze znajdują się trzy ustawne pokoje i duża łazienka z miejscem na wannę i prysznic. Główna sypialnia została połączona z przestronną garderobą, ze spocznika schodów dostaniemy się natomiast do pomieszczenia nad garażem, które może pełnić rolę strychu, pralni, miejsca zabaw lub po prostu dodatkowego pokoju. Dom jest prosty i tani w budowie. Budynek zaprojektowano w oparciu o najnowsze przepisy prawa budowlanego, z dużą dbałością o jego wpływ na środowisko naturalne. Dokumentacja w standardzie zawiera projekt wentylacji mechanicznej z rekuperatorem.
Uwaga! Dokumentacja Projektowa nie zawiera elementów małej architektury takich jak: donice, podesty, altany, grille ogrodowe, murki, pergole, a także innych elementów wizualizacji, takich jak: garaże i wiaty wolnostojące, drogi, podjazdy, ogrodzenia, baseny itp.
Tanie w budowie projekty domów, funkcjonalne układy pomieszczeń.
































