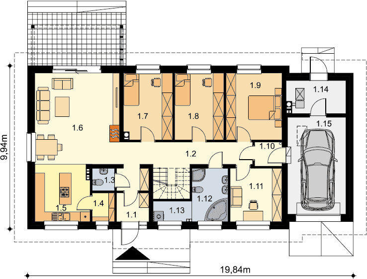
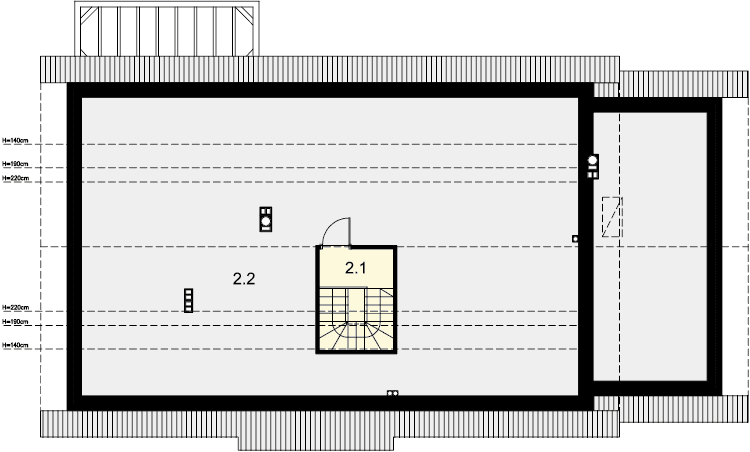
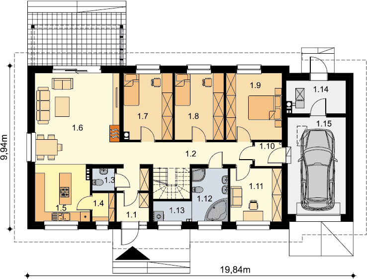
Kolejna wersja popularnego projektu Tamara. Budynek ma klasyczną prostą formę i nieskomplikowany dach, co korzystnie wpływa na oszczędności związane z jego budową oraz późniejszą eksploatacją. Elementy drewniane na elewacji zapewniają mu nowoczesny wygląd, a zadaszony taras z pewnością będzie miejscem odpoczynku i relaksu. W ciągu dnia domownicy mają do dyspozycji duży, dobrze oświetlony salon, połączony z jadalnią, która płynnie przechodzi w kuchnię. Nie zapomniano również o praktycznej spiżarni i dodatkowej toalecie, dostępnej z korytarza. Część nocna to cztery ustawne pokoje, łazienka z miejscem na wannę i prysznic oraz praktyczna pralnia. Do garażu dostajemy się z korytarza. Za nim znajduje się duża kotłownia z wyjściem na zewnątrz. W domu zaprojektowano dwa rodzaje ogrzewania: GAZOWE oraz na PALIWO STAŁE. Od przyszłego inwestora zależy, które z nich wykorzysta w swoim domu. W budynku zaprojektowano solidny i wytrzymały stop żelbetowy i tradycyjną więźbę drewnianą. W korytarzu zaprojektowano schody prowadzące na strych o powierzchni użytkowej ponad 70 m². Tę dodatkową przestrzeń można zaadaptować na pokój hobby, studio, pracownię lub dodatkowe pomieszczenia mieszkalne.
W domu zaprojektowano wentylację grawitacyjną oraz, jako alternatywę, wentylację mechaniczną z rekuperacją. Budynek zaprojektowano w oparciu o najnowsze przepisy prawa budowlanego, z dużą dbałością o jego wpływ na środowisko naturalne.
Uwaga! Dokumentacja Projektowa nie zawiera elementów małej architektury takich jak: donice, podesty, altany, grille ogrodowe, murki, pergole, a także innych elementów wizualizacji, takich jak: garaże i wiaty wolnostojące, drogi, podjazdy, ogrodzenia, baseny itp.
Tanie w budowie projekty domów, funkcjonalne układy pomieszczeń.






















