Padme 6 to duży i luksusowy dom z poddaszem użytkowym, przeznaczony dla inwestorów szukających budynku oferującego bardzo dużo przestrzeni i wyróżniającego się na tle bardziej klasycznej architektury. Poza nowoczesnymi detalami budynek zwraca uwagę niezwykle przemyślanym układem wnętrza i poza salonem oferuje aż 6 dodatkowych pokoi. Parter został zaprojektowany na bazie dużego domu parterowego, do środka dostajemy się przez spory wiatrołap, który od razu otwiera się na ogromny salon. Podzielono go na dwie strefy: wypoczynkową i jadalnię, w której bez trudu zmieści się długi, rodzinny stół. Całości dopełniają duże przeszklenia okien i drzwi balkonowych, zapewniające maksimum światła o każdej porze roku. Nowoczesną open space wzbogaca duża, otwarta kuchnia, sąsiadująca z praktyczną spiżarnią. W drugiej części domu zaplanowano strefę nocną. Znalazły się tu trzy ustawne pokoje, spora łazienka, garderoba i dodatkowa toaleta. Główna sypialnia posiada własną łazienkę. Z wiatrołapu dostaniemy się natomiast do dużego garażu oraz sąsiadującej z nim kotłowni, w której zaprojektowano 2 rodzaje ogrzewania: GAZOWE oraz na PALIWO STAŁE. Dzięki takiemu zabiegowi, projektu nie trzeba przerabiać, inwestor sam decyduje, który rodzaj ogrzewania zastosuje w swoim domu - dokumentacja zawiera schematy i rozwinięcia instalacji c.o. i elektrycznych dla obydwu rozwiązań.
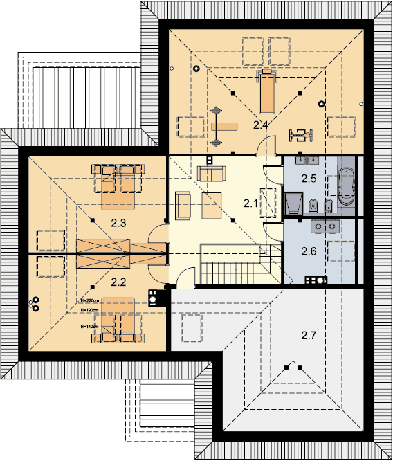
W korytarzu znalazły miejsce wygodne schody prowadzące na poddasze gdzie dostępne są dwie dodatkowe sypialnie, duży pokój rekreacyjny, a także kolejna łazienka, pralnia i spory strych. W domu zaprojektowano wentylację grawitacyjną oraz, jako alternatywę, wentylację mechaniczną z rekuperacją. Budynek opracowano w oparciu o najnowsze przepisy prawa budowlanego, z dużą dbałością o jego wpływ na środowisko naturalne.
Uwaga! Dokumentacja Projektowa nie zawiera elementów małej architektury takich jak: donice, podesty, altany, grille ogrodowe, murki, pergole, a także innych elementów wizualizacji, takich jak: garaże i wiaty wolnostojące, drogi, podjazdy, ogrodzenia, baseny itp.
Tanie w budowie projekty domów, funkcjonalne układy pomieszczeń.






















