Projekt domu Ajaks 5 jest budynkiem wyróżniającym się zwartą bryłą przykrytą dwuspadowym dachem oraz niezwykle funkcjonalnym wnętrzem. Do środka dostaniemy się przez duży wiatrołap, który zaprowadzi nas także bezpośrednio do garażu. Garaż jest niezwykle szeroki i przestronny, co umożliwia parkowanie nawet większym pojazdom, tuż za nim znajduje się spora kotłownia, w której zaprojektowano dwa rodzaje ogrzewania: GAZOWE oraz na PALIWO STAŁE (projekt zawiera schematy i rozwinięcia instalacji c.o. i elektrycznych, obydwu sposobów ogrzewania).
#Ajaks5 #ProjektDomu #BudowaDomu #DomJednorodzinny #Garaż #FunkcjonalneWnętrze #DwuspadowyDach #Ogrzewanie #GazoweOgrzewanie #OgrzewanieNaPaliwoStałe #StrefaDzienna #Kuchnia #Salon #Kominek #JasnaŁazienka #StrefaNocna #Sypialnie #ŚciankaKolankowa #Poddasze #Strych #ProstyDom #TaniDom #Ekologia #WentylacjaMechaniczna #Rekuperacja #ProjektowanieBudynku #EkologiczneAspekty #DomWTradycyjnymStylu #DomWNowoczesnymStylu #PrzepisyPrawaBudowlanego #OchronaŚrodowiska #Architektura #Inwestycja #DomMarzeń #ProjektyDomów
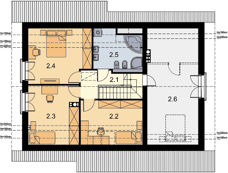
Inwestor sam zadecyduje, które z nich wykorzysta w swoim domu. Na strefę dzienną parteru składają się: kuchnia z dużą ilością blatów roboczych oraz możliwością zaplanowania sprzętów w wysokiej zabudowie, praktyczna spiżarnia, przestronny, jasny salon z jadalnią i centralnie umieszczonym kominkiem, dodatkowy pokój z przeznaczeniem na gabinet lub pokój gościnny oraz jasna, duża łazienka zlokalizowana ustronnie z przodu budynku. Na piętrze zaprojektowano typową strefę nocną z trzema ustawnymi sypialniami i dużą łazienką z miejscem na wannę i prysznic. Wysoka ścianka kolankowa pozwala w pełni wykorzystać przestrzeń poddasza. Dodatkowym atutem jest pomieszczenie strychu dostępne bezpośrednio ze spocznika schodów, które można zaadoptować na pokój hobby lub pracownię, można je także podzielić na dwa mniejsze pomieszczenia mieszkalne. Dom jest prosty i tani w budowie oraz późniejszej eksploatacji. Jego elewację można wykończyć zarówno w tradycyjnym, jak i nowoczesnym stylu z modną okładziną drewnianą. Przy jego projektowaniu nie zapomniano o aspektach ekologicznych, poza tradycyjną wentylację grawitacyjną, jako alternatywę zaprojektowano także wentylację mechaniczną z rekuperacją. Budynek opracowano w oparciu o najnowsze przepisy prawa budowlanego, z dużą dbałością o jego wpływ na środowisko naturalne.
Uwaga! Dokumentacja Projektowa nie zawiera elementów małej architektury takich jak: donice, podesty, altany, grille ogrodowe, murki, pergole, a także innych elementów wizualizacji, takich jak: garaże i wiaty wolnostojące, drogi, podjazdy, ogrodzenia, baseny itp.
Tanie w budowie projekty domów, funkcjonalne układy pomieszczeń.

















