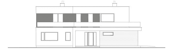
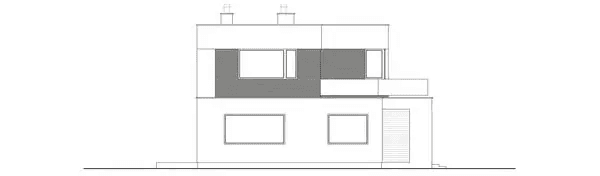
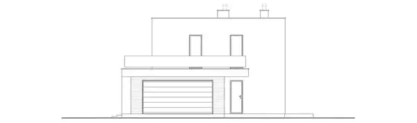
INTENSYWNY D74 to nowoczesny, piętrowy dom z płaskim dachem, w którym wysoki komfort użytkowania został połączony z estetycznym wyglądem.
Na parterze zaprojektowano całkiem sporo pomieszczeń: salon połączony z jadalnią, kuchnię ze spiżarnią, pokój z prywatną garderobą i łazienką, garaż, pomieszczenie techniczne, toaletę, wiatrołap oraz schody prowadzące na piętro, a obok nich schowek. W salonie przewidziano miejsce na wygodną kanapę, kominek oraz wyjście na taras, a w jadalni – na duży stół. Kuchnia jest częściowo otwarta na jadalnię, co ułatwi np. podawanie potraw. Pokój ma wyjście na taras i może pełnić funkcje gabinetu albo sypialni dla gości. Nietypowo zostały rozwiązane wejścia do pomieszczenia technicznego: można dostać się z zewnątrz, z garderoby pokoju albo z garażu. Nie zapomniano też o miejscach na przechowywanie: w dużym wiatrołapie zaprojektowano szafę na okrycia wierzchnie.
Na piętrze zaprojektowano 3 pokoje/sypialnie, dwie garderoby z wejściem z korytarza oraz łazienkę. Sypialnia gospodarzy dodatkowo posiada własną garderobę i łazienkę. Z każdej sypialni oraz z korytarza jest wyjście na częściowo zadaszony duży taras.
Dom charakteryzuje się nowoczesną, unikalną i zwartą bryłą. Elewacja budynku to połączenie bieli, szarości i ocieplających dom desek.
Autor projektu: mgr inż. arch. Ewelina Grochowska
Technologie
Fundamenty ławy fundamentowe żelbetowe monolityczne
Ściany fundamentowe bloczki betonowe
Ściany konstrukcyjne pustaki gazobetonowe o grubości 24 cm
Ściany działowe pustaki gazobetonowe o grubości 12 cm
Stropy żelbetowe monolityczne
Dach stropodach
Ewelina Grochowska














